Описание объекта лот №: 990837
| Возможное использование: | Магазины Аптеки Павильоны | ||||||||||||||||||
| Операция: | Продажа | ||||||||||||||||||
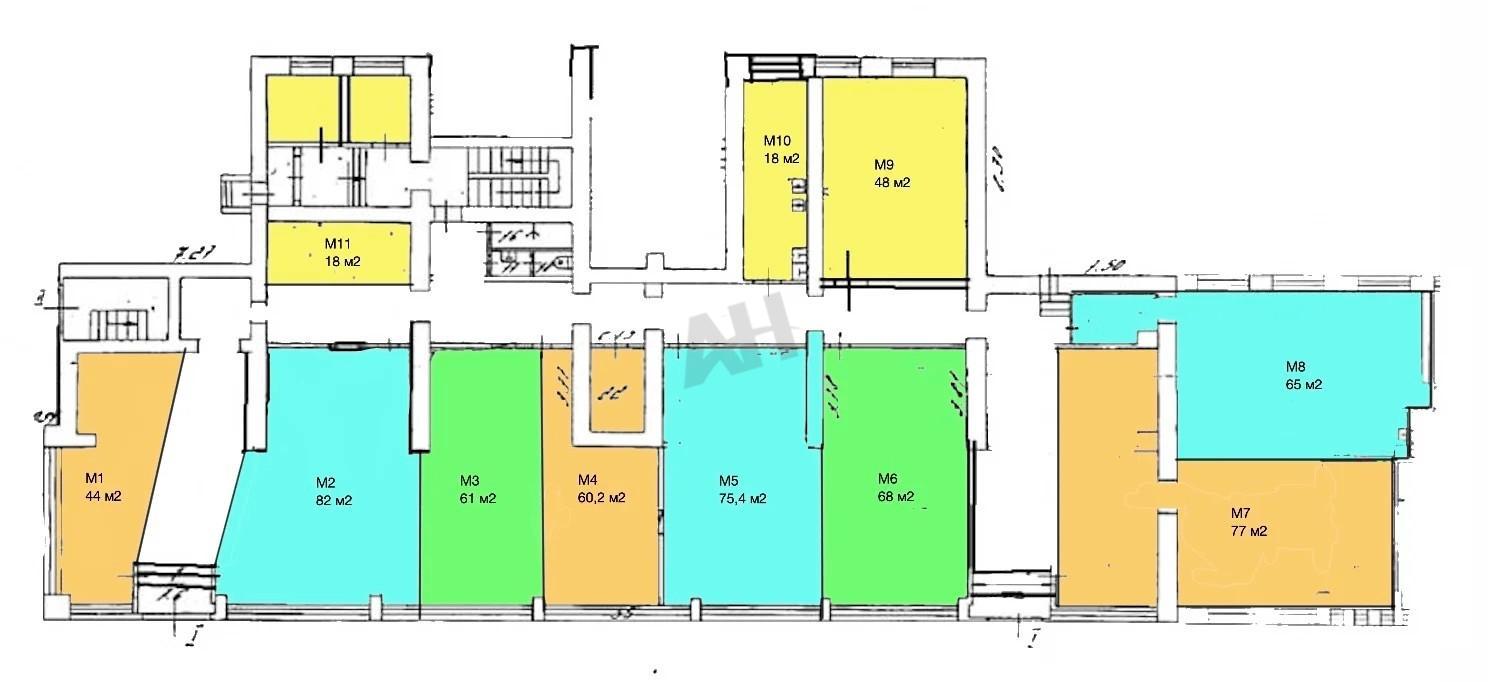
| Площадь: | 61 - 346 кв. м | ||||||||||||||||||
| Этаж: | 1 | ||||||||||||||||||
| Местоположение | |||||||||||||||||||
| Округ: | СВАО | ||||||||||||||||||
| Метро: | Выставочный центр, Улица Сергея Эйзенштейна, Ростокино (МЦК) | ||||||||||||||||||
| От метро: | 8 мин. пешком | ||||||||||||||||||
| Улица: | Мира пр-кт | ||||||||||||||||||
| ИФНС | № 7717 | ||||||||||||||||||
| Стоимость и условия | |||||||||||||||||||
| Цена: |
18 300 000 руб. за 61 кв. м Сообщить о снижении цены
|
||||||||||||||||||
| Срок окупаемости: | 10 лет | ||||||||||||||||||
| Характеристики | |||||||||||||||||||
| Тип здания: | Жилые дома | ||||||||||||||||||
| Отдельный вход: | ✓ | ||||||||||||||||||
| Этажность здания: | 11 | ||||||||||||||||||
| Круглосуточный доступ: | ✓ | ||||||||||||||||||
| Наличие паркинга: | ✓ | ||||||||||||||||||
| Описание | |||||||||||||||||||
|
Лот №990837 Предлагаются к продаже торговые помещения с панорамными фасадными окнами. Шикарное расположение на 1 линии Проспекта Мира в 9 мин пешком от м.ВДНХ, м.Ростокино (МЦК), м.Ботанический сад. Локация отличается высоким трафиком благодаря расположению в крупном жилом массиве с интенсивным пешеходным и автомобильным потоком. В непосредственной близости остановка общественного транспорта. Объекты расположены по встроенно-пристроенном здании с 3 отдельными входами и витринным остеклением. Высота потолков 3,5 метра, все центральные коммуникации, выделенная электрическая мощность составляет 90 кВт. Имеется возможность для размещения рекламной вывески. Дополнительно к основному пространству возможно рассмотрение предоставления полезной площади в подвальном помещении здания. Актуальные площади и цены (м2):
Чтобы получить ПОДРОБНУЮ ПРЕЗЕНТАЦИЮ С ПЛАНИРОВКОЙ И ФОТОГРАФИЯМИ на этот объект, звоните. Высылаем в течение 15 минут по запросу! |
|||||||||||||||||||
| Доп. услуги: | - возможна продажа в кредит |
||||||||||||||||||
| Контактная информация | |||||||||||||||||||
| Лот №: | 990837 | ||||||||||||||||||
| Контактное лицо: | Андрей Валерьевич | ||||||||||||||||||
| Телефон: | 8 (495) 822-78-71 доб.253 | ||||||||||||||||||


