Описание объекта лот №: 967485
| Возможное использование: | Свободное назначение Фитнес Бизнес |
| Операция: | Продажа бизнеса |
| Площадь: | 148.4 кв. м |
| Этаж: | 1 |
| Местоположение | |
| Город: | Сходня, Подрезково |
| Улица: | Ленинградское шоссе |
| ИФНС | № 5047 |
| Стоимость и условия | |
| Цена: |
35 000 000 руб. Сообщить о снижении цены
|
| Срок окупаемости: | 10 лет |
| Эксплуатационные расходы включены: | ✓ |
| Характеристики | |
| Тип здания: | Жилые дома |
| Отдельный вход: | ✓ |
| Этажность здания: | 13 |
| Наличие паркинга: | ✓ |
| Тип окон: | витринные |
| Электрическая мощность, кВт: | 27 |
| Описание | |
|
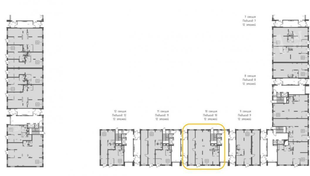
Лот №967485 Предлагается на продажу - Готовый арендный бизнес, помещение 148,36м2 на 1 этаже жилого дома в ЖК " Пятницкие луга" в Химках. Арендатор: сеть фитнес клубов -X Fit. МАП: 304 138 руб. ГАБ: 3 649 656 руб. Долгосрочный договор аренды на 5 лет. Индексация 5% с 30 мес. аренды в одностороннем порядке. Каникулы 5 месяцев. Расположение: 16км от МКАД по Пятницкому шоссе, масштабный проект с собственной инфраструктурой из 10 корпусов. Дом введен в эксплуатацию, ожидаем ключи. Звоните, оперативно покажем и расскажем!
Чтобы получить ПОДРОБНУЮ ПРЕЗЕНТАЦИЮ С ПЛАНИРОВКОЙ И ФОТОГРАФИЯМИ на этот объект, звоните. Высылаем в течение 15 минут по запросу! |
|
| Доп. услуги: | - возможна продажа в кредит |
| Контактная информация | |
| Лот №: | 967485 |
| Контактное лицо: | Лидия Владимировна |
| Телефон: | 8 (495) 822-78-71 доб.240 |


