Описание объекта лот №: 1049452
| Возможное использование: | Свободное назначение Аптеки Банки Бытовые услуги Магазины Медцентры Офисы Салоны красоты Шоурумы Новостройки |
| Операция: | Продажа |
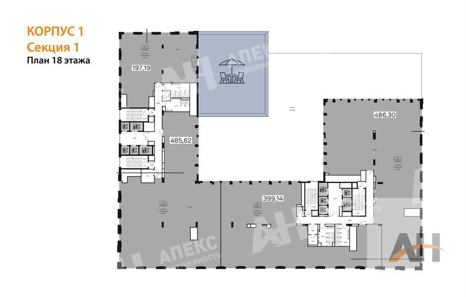
| Площадь: | 399.1 кв. м |
| Этаж: | 18 |
| Местоположение | |
| Город: | Крёкшино, Марушкино |
| Улица: | Киевское шоссе |
| ИФНС | № 7751 |
| Стоимость и условия | |
| Цена: |
135 919 108 руб. Сообщить о снижении цены
|
| Характеристики | |
| Тип здания: | Жилые дома |
| Этажность здания: | 26 |
| Наличие лифта: | ✓ |
| Наличие паркинга: | ✓ |
| Электрическая мощность, кВт: | 79 |
| Срок сдачи: | 2026 г. (3 кв.) |
| Описание | |
|
Лот №1049452 Продажа коммерческого помещения в новостройке: 399,14 кв. м. 18 этаж в комплексе БЦ WAFI2B TAGILSKAYA, 1 очередь, корп.1. Этажей: 26 Застройщик: AFI Development. Помещение свободного назначения под любой вид деятельности (медцентр, салон красоты, парикмахерская, офис, ресторан, бар, банк, бытовые услуги, торговое помещение, магазин и т.д.) Срок сдачи: 3 кв. 2026 г. Адрес объекта отсутствует на Яндекс картах, поэтому указан ближайший точный адрес
Чтобы получить ПОДРОБНУЮ ПРЕЗЕНТАЦИЮ С ПЛАНИРОВКОЙ И ФОТОГРАФИЯМИ на этот объект, звоните. Высылаем в течение 15 минут по запросу! |
|
| Доп. услуги: | - возможна продажа в кредит |
| Контактная информация | |
| Лот №: | 1049452 |
| Контактное лицо: | НОВОСТРОЙКИ |
| Телефон: | 8 (495) 822-78-71 доб.211 |


