Описание объекта лот №: 1018790
| Возможное использование: | Свободное назначение Аптеки Банки Бытовые услуги Магазины Медцентры Офисы Салоны красоты Шоурумы Новостройки |
| Операция: | Продажа |
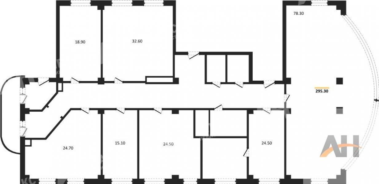
| Площадь: | 295.3 кв. м |
| Этаж: | 5 |
| Местоположение | |
| Город: | Химки, Долгопрудный |
| Метро: | Ховрино, Планерная, Беломорская |
| Улица: | Ленинградское шоссе |
| ИФНС | № 5047 |
| Стоимость и условия | |
| Цена: |
39 650 000 руб. Сообщить о снижении цены
|
| Характеристики | |
| Тип здания: | Жилые дома |
| Этажность здания: | 14 |
| Наличие лифта: | ✓ |
| Наличие паркинга: | ✓ |
| Электрическая мощность, кВт: | 59 |
| Срок сдачи: | 2014 г. (3 кв.) |
| Описание | |
|
Лот №1018790 Продается коммерческое помещение общей площадью 295,30 кв. м., расположенное на 5 этаже 14-этажного здания. Объект находится в первой очереди строительства бизнес-центра «Панорама», корпус 1, по адресу: г. Химки, Московская ул., д. 38А. Сдача объекта в эксплуатацию запланирована на третий квартал 2014 года. Помещение имеет свободное функциональное назначение и может быть использовано для организации медицинского центра, салона красоты, офиса, ресторана, банка, торговой точки или иного вида деятельности. Высота потолков составляет 3,40 метра.
Чтобы получить ПОДРОБНУЮ ПРЕЗЕНТАЦИЮ С ПЛАНИРОВКОЙ И ФОТОГРАФИЯМИ на этот объект, звоните. Высылаем в течение 15 минут по запросу! |
|
| Доп. услуги: | - возможна продажа в кредит |
| Контактная информация | |
| Лот №: | 1018790 |
| Контактное лицо: | НОВОСТРОЙКИ |
| Телефон: | 8 (495) 822-78-71 доб.211 |


