Описание объекта лот №: 1012513
| Возможное использование: | Свободное назначение Аптеки Банки Бытовые услуги Магазины Медцентры Офисы Салоны красоты Шоурумы Новостройки |
| Операция: | Продажа |
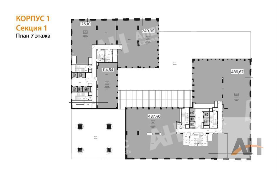
| Площадь: | 489.7 кв. м |
| Этаж: | 7 |
| Местоположение | |
| Город: | Крёкшино, Марушкино |
| Улица: | Киевское шоссе |
| ИФНС | № 7751 |
| Стоимость и условия | |
| Цена: |
146 721 379 руб. Сообщить о снижении цены
|
| Характеристики | |
| Тип здания: | Жилые дома |
| Этажность здания: | 26 |
| Наличие лифта: | ✓ |
| Наличие паркинга: | ✓ |
| Электрическая мощность, кВт: | 97 |
| Срок сдачи: | 2026 г. (3 кв.) |
| Описание | |
|
Лот №1012513 Предлагается к продаже коммерческое помещение общей площадью 489,67 кв. м., расположенное на 7 этаже в строящемся бизнес-комплексе WAFI2B TAGILSKAYA. Объект относится к первой очереди строительства, корпус 1. Общее количество этажей в здании — 26. Помещение имеет статус свободного назначения, что позволяет разместить практически любой вид коммерческой деятельности. Наиболее вероятные варианты использования включают медицинский центр, салон красоты, парикмахерскую, офисные пространства, ресторан, бар, банковское отделение, предприятия бытового обслуживания, а также торговые помещения и магазины. Сдача объекта в эксплуатацию запланирована на третий квартал 2026 года. Адрес объекта отсутствует на Яндекс картах, поэтому указан ближайший точный адрес
Чтобы получить ПОДРОБНУЮ ПРЕЗЕНТАЦИЮ С ПЛАНИРОВКОЙ И ФОТОГРАФИЯМИ на этот объект, звоните. Высылаем в течение 15 минут по запросу! |
|
| Доп. услуги: | - возможна продажа в кредит |
| Контактная информация | |
| Лот №: | 1012513 |
| Контактное лицо: | НОВОСТРОЙКИ |
| Телефон: | 8 (495) 822-78-71 доб.211 |


