Описание объекта лот №: 1012512
| Возможное использование: | Свободное назначение Аптеки Банки Бытовые услуги Магазины Медцентры Офисы Салоны красоты Шоурумы Новостройки |
| Операция: | Продажа |
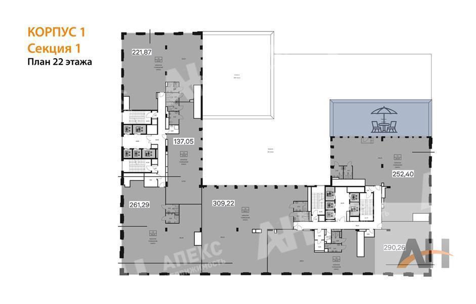
| Площадь: | 309.2 кв. м |
| Этаж: | 22 |
| Местоположение | |
| Город: | Крёкшино, Марушкино |
| Улица: | Киевское шоссе |
| ИФНС | № 7751 |
| Стоимость и условия | |
| Цена: |
121 943 146 руб. Сообщить о снижении цены
|
| Характеристики | |
| Тип здания: | Жилые дома |
| Этажность здания: | 26 |
| Наличие лифта: | ✓ |
| Наличие паркинга: | ✓ |
| Электрическая мощность, кВт: | 61 |
| Срок сдачи: | 2026 г. (3 кв.) |
| Описание | |
|
Лот №1012512 Предлагается к продаже коммерческое помещение площадью 309,22 кв. м., расположенное на 22 этаже 26-этажного бизнес-центра WAFI2B TAGILSKAYA. Объект находится в первой очереди строительства, корпус 1. Помещение обладает статусом свободного назначения, что позволяет разместить практически любой вид бизнеса. Оно оптимально подойдет для медицинского центра, салона красоты, парикмахерской, офиса, ресторана, бара, банка, предприятий сферы бытовых услуг, торговых площадей или магазина. Сдача объекта в эксплуатацию запланирована на третий квартал 2026 года. Адрес объекта отсутствует на Яндекс картах, поэтому указан ближайший точный адрес
Чтобы получить ПОДРОБНУЮ ПРЕЗЕНТАЦИЮ С ПЛАНИРОВКОЙ И ФОТОГРАФИЯМИ на этот объект, звоните. Высылаем в течение 15 минут по запросу! |
|
| Доп. услуги: | - возможна продажа в кредит |
| Контактная информация | |
| Лот №: | 1012512 |
| Контактное лицо: | НОВОСТРОЙКИ |
| Телефон: | 8 (495) 822-78-71 доб.211 |


