Описание объекта лот №: 1012511
| Возможное использование: | Свободное назначение Аптеки Банки Бытовые услуги Магазины Медцентры Офисы Салоны красоты Шоурумы Новостройки |
| Операция: | Продажа |
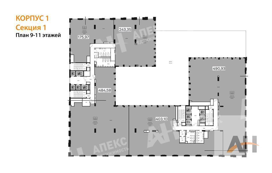
| Площадь: | 403.1 кв. м |
| Этаж: | 10 |
| Местоположение | |
| Город: | Крёкшино, Марушкино |
| Улица: | Киевское шоссе |
| ИФНС | № 7751 |
| Стоимость и условия | |
| Цена: |
129 509 653 руб. Сообщить о снижении цены
|
| Характеристики | |
| Тип здания: | Жилые дома |
| Этажность здания: | 26 |
| Наличие лифта: | ✓ |
| Наличие паркинга: | ✓ |
| Электрическая мощность, кВт: | 80 |
| Срок сдачи: | 2026 г. (3 кв.) |
| Описание | |
|
Лот №1012511 Предлагается к продаже коммерческое помещение общей площадью 403,10 кв. м., расположенное на 10 этаже в строящемся бизнес-комплексе WAFI2B TAGILSKAYA. Объект находится в первой очереди строительства, корпус 1. Здание запланировано к сдаче в третьем квартале 2026 года и будет насчитывать 26 этажей. Помещение имеет статус свободного назначения, что позволяет адаптировать его под широкий спектр видов коммерческой деятельности. Возможно размещение медицинского центра, салона красоты, офисных пространств, предприятий общественного питания, финансовых учреждений, объектов розничной торговли или бытового обслуживания. Адрес объекта отсутствует на Яндекс картах, поэтому указан ближайший точный адрес
Чтобы получить ПОДРОБНУЮ ПРЕЗЕНТАЦИЮ С ПЛАНИРОВКОЙ И ФОТОГРАФИЯМИ на этот объект, звоните. Высылаем в течение 15 минут по запросу! |
|
| Доп. услуги: | - возможна продажа в кредит |
| Контактная информация | |
| Лот №: | 1012511 |
| Контактное лицо: | НОВОСТРОЙКИ |
| Телефон: | 8 (495) 822-78-71 доб.211 |


