Описание объекта лот №: 1012509
| Возможное использование: | Свободное назначение Аптеки Банки Бытовые услуги Магазины Медцентры Офисы Салоны красоты Шоурумы Новостройки |
| Операция: | Продажа |
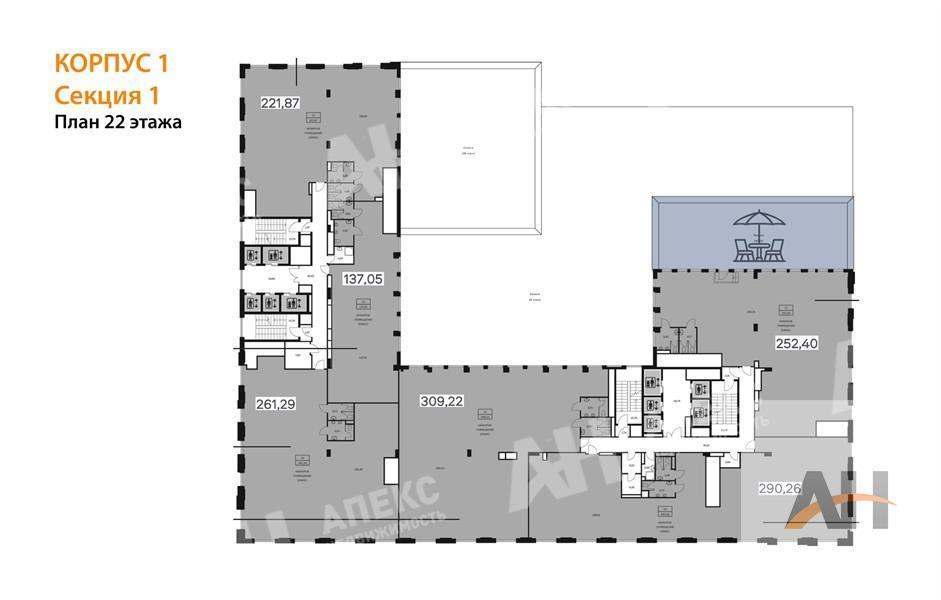
| Площадь: | 261.3 кв. м |
| Этаж: | 22 |
| Местоположение | |
| Город: | Крёкшино, Марушкино |
| Улица: | Киевское шоссе |
| ИФНС | № 7751 |
| Стоимость и условия | |
| Цена: |
105 970 662 руб. Сообщить о снижении цены
|
| Характеристики | |
| Тип здания: | Жилые дома |
| Этажность здания: | 26 |
| Наличие лифта: | ✓ |
| Наличие паркинга: | ✓ |
| Электрическая мощность, кВт: | 52 |
| Срок сдачи: | 2026 г. (3 кв.) |
| Описание | |
|
Лот №1012509 Продается коммерческое помещение общей площадью 261,29 кв. м., расположенное на 22 этаже в составе первой очереди строительства бизнес-центра WAFI2B TAGILSKAYA, корпус 1. Здание комплекса насчитывает 26 этажей, планируемый срок ввода в эксплуатацию — третий квартал 2026 года. Помещение имеет статус свободного назначения, что позволяет разместить практически любой вид коммерческой деятельности. Наиболее оптимальными вариантами использования могут стать медицинский центр, салон красоты, парикмахерская, офисные пространства, ресторан или бар, банковское отделение, предприятия бытового обслуживания, а также торговые помещения и магазины. Объект представляет собой перспективную инвестицию в новое современное здание, соответствующее актуальным стандартам коммерческой недвижимости. Адрес объекта отсутствует на Яндекс картах, поэтому указан ближайший точный адрес
Чтобы получить ПОДРОБНУЮ ПРЕЗЕНТАЦИЮ С ПЛАНИРОВКОЙ И ФОТОГРАФИЯМИ на этот объект, звоните. Высылаем в течение 15 минут по запросу! |
|
| Доп. услуги: | - возможна продажа в кредит |
| Контактная информация | |
| Лот №: | 1012509 |
| Контактное лицо: | НОВОСТРОЙКИ |
| Телефон: | 8 (495) 822-78-71 доб.211 |


