Описание объекта лот №: 1012507
| Возможное использование: | Свободное назначение Аптеки Банки Бытовые услуги Магазины Медцентры Офисы Салоны красоты Шоурумы Новостройки |
| Операция: | Продажа |
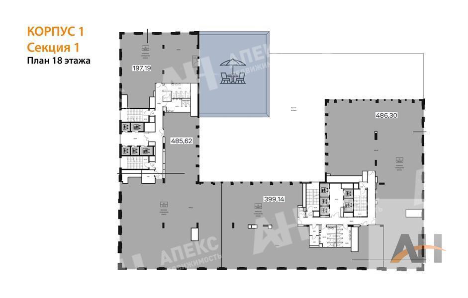
| Площадь: | 485.6 кв. м |
| Этаж: | 18 |
| Местоположение | |
| Город: | Крёкшино, Марушкино |
| Улица: | Киевское шоссе |
| ИФНС | № 7751 |
| Стоимость и условия | |
| Цена: |
154 726 083 руб. Сообщить о снижении цены
|
| Характеристики | |
| Тип здания: | Жилые дома |
| Этажность здания: | 26 |
| Наличие лифта: | ✓ |
| Наличие паркинга: | ✓ |
| Электрическая мощность, кВт: | 97 |
| Срок сдачи: | 2026 г. (3 кв.) |
| Описание | |
|
Лот №1012507 Продается коммерческое помещение площадью 485,62 кв. м., расположенное на 18 этаже 26-этажного бизнес-комплекса БЦ WAFI2B TAGILSKAYA. Объект находится в первой очереди строительства, корпус 1. Сдача объекта в эксплуатацию запланирована на третий квартал 2026 года. Помещение имеет статус свободного назначения, что позволяет разместить практически любой вид коммерческой деятельности. Оно оптимально подойдет для медицинского центра, салона красоты, парикмахерской, офиса, ресторана, бара, банка, предприятий бытового обслуживания, торговых площадей или магазина. Объект представляет собой перспективное вложение в недвижимость в строящемся современном деловом комплексе. Адрес объекта отсутствует на Яндекс картах, поэтому указан ближайший точный адрес
Чтобы получить ПОДРОБНУЮ ПРЕЗЕНТАЦИЮ С ПЛАНИРОВКОЙ И ФОТОГРАФИЯМИ на этот объект, звоните. Высылаем в течение 15 минут по запросу! |
|
| Доп. услуги: | - возможна продажа в кредит |
| Контактная информация | |
| Лот №: | 1012507 |
| Контактное лицо: | НОВОСТРОЙКИ |
| Телефон: | 8 (495) 822-78-71 доб.211 |


