Описание объекта лот №: 1012506
| Возможное использование: | Свободное назначение Аптеки Банки Бытовые услуги Магазины Медцентры Офисы Салоны красоты Шоурумы Новостройки |
| Операция: | Продажа |
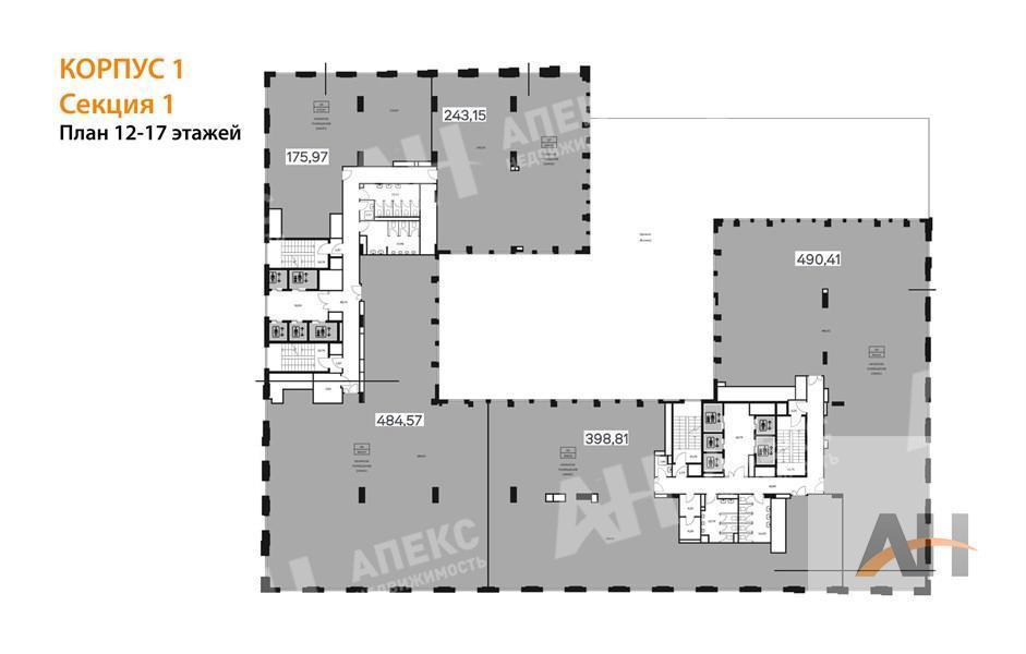
| Площадь: | 484.6 кв. м |
| Этаж: | 14 |
| Местоположение | |
| Город: | Крёкшино, Марушкино |
| Улица: | Киевское шоссе |
| ИФНС | № 7751 |
| Стоимость и условия | |
| Цена: |
118 201 538 руб. Сообщить о снижении цены
|
| Характеристики | |
| Тип здания: | Жилые дома |
| Этажность здания: | 26 |
| Наличие лифта: | ✓ |
| Наличие паркинга: | ✓ |
| Электрическая мощность, кВт: | 96 |
| Срок сдачи: | 2026 г. (3 кв.) |
| Описание | |
|
Лот №1012506 Предлагается к продаже коммерческое помещение общей площадью 484,57 кв. м., расположенное на 14 этаже в составе первой очереди строительства бизнес-центра WAFI2B TAGILSKAYA, корпус 1. Общее количество этажей в здании — 26. Объект находится по адресу: Москва, район Метрогородок, дом владение 4, земельный участок 1. Помещение имеет статус свободного назначения, что позволяет разместить практически любой вид коммерческой деятельности. Оно оптимально подойдет для организации медицинского центра, салона красоты, парикмахерской, офиса, ресторана, бара, банковского отделения, предприятия бытовых услуг, торговой точки или магазина. Сдача объекта в эксплуатацию запланирована на третий квартал 2026 года.
Чтобы получить ПОДРОБНУЮ ПРЕЗЕНТАЦИЮ С ПЛАНИРОВКОЙ И ФОТОГРАФИЯМИ на этот объект, звоните. Высылаем в течение 15 минут по запросу! |
|
| Доп. услуги: | - возможна продажа в кредит |
| Контактная информация | |
| Лот №: | 1012506 |
| Контактное лицо: | НОВОСТРОЙКИ |
| Телефон: | 8 (495) 822-78-71 доб.211 |


