Описание объекта лот №: 990838
| Возможное использование: | Магазины Аптеки Павильоны |
| Операция: | Продажа |
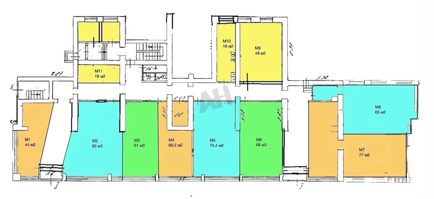
| Площадь: | 1149 кв. м |
| Этаж: | 1 |
| Местоположение | |
| Округ: | |
| Метро: | Ростокино (МЦК), Улица Сергея Эйзенштейна, Выставочный центр |
| От метро: | 8 мин. пешком |
| Улица: | Мира пр-кт |
| ИФНС | № 7717 |
| Стоимость и условия | |
| Цена: |
150 000 000 руб. Сообщить о снижении цены
|
| Срок окупаемости: | 10 лет |
| Характеристики | |
| Тип здания: | Жилые дома |
| Отдельный вход: | ✓ |
| Этажность здания: | 11 |
| Круглосуточный доступ: | ✓ |
| Наличие паркинга: | ✓ |
| Описание | |
|
Лот №990838 Предлагаются к продаже торговые помещения 1149м2 с панорамными фасадными окнами. Шикарное расположение на 1 линии Проспекта Мира в 9 мин пешком от м.ВДНХ, м.Ростокино (МЦК), м.Ботанический сад. Локация отличается высоким трафиком благодаря расположению в крупном жилом массиве с интенсивным пешеходным и автомобильным потоком. В непосредственной близости остановка общественного транспорта. Объект состоит из помещений на 1 этаже (800м2) и в подвале (349м2), расположенных по встроенно-пристроенном здании с 3 отдельными входами и витринным остеклением. Имеется возможность для размещения рекламной вывески. Помещение на 1 этаже имеет зальную планировку с возможностью деления под задачи покупателя. Высота потолков 3,5 метра, все центральные коммуникации, выделенная электрическая мощность 90 кВт.
Чтобы получить ПОДРОБНУЮ ПРЕЗЕНТАЦИЮ С ПЛАНИРОВКОЙ И ФОТОГРАФИЯМИ на этот объект, звоните. Высылаем в течение 15 минут по запросу! |
|
| Доп. услуги: | - возможна продажа в кредит |
| Контактная информация | |
| Лот №: | 990838 |
| Контактное лицо: | Андрей Валерьевич |
| Телефон: | 8 (495) 822-78-71 доб.253 |


