Описание объекта лот №: 976088
| Возможное использование: | Свободное назначение Бизнес |
| Операция: | Продажа бизнеса |
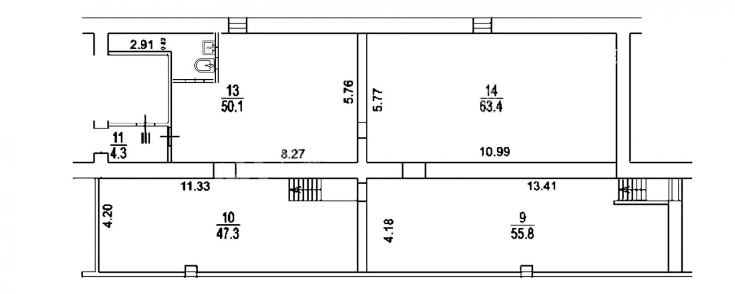
| Площадь: | 222.1 кв. м |
| Этаж: | цоколь |
| Местоположение | |
| Округ: | ЮЗАО |
| Метро: | Новаторская, Вавиловская, Проспект Вернадского |
| От метро: | 16 мин. пешком |
| Улица: | Марии Ульяновой ул |
| ИФНС | № 7736 |
| Стоимость и условия | |
| Цена: |
28 500 000 руб. Сообщить о снижении цены
|
| Срок окупаемости: | 8 лет |
| Обеспечительный платеж: | Без залога |
| Характеристики | |
| Тип здания: | Жилые дома |
| Этажность здания: | 9 |
| Описание | |
|
Лот №976088 Продажа готового арендного бизнеса Коммерческое помещение площадью 222,1 м² в цокольном этаже жилого дома. Имеется отдельный вход, комфортные параметры для стабильной работы арендаторов: высота потолков 2,7 м, мощность 15 кВт. • 16 минут пешком до станции «Новаторская» • 4 минуты до ближайшей остановки наземного транспорта • В радиусе 10 минут ходьбы — плотная жилая застройка, высокая концентрация потенциальных клиентов • Рядом школа и детский сад, формирующие устойчивый поток людей Арендный бизнес • Действующие арендаторы: школа исторического фехтования и студия йоги • Коммунальные платежи полностью компенсируются арендаторами • В договоре предусмотрена ежегодная индексация ставки на 7% Ключевые преимущества Полностью готовый арендный поток без рисков поиска арендаторов. Договорная индексация, обеспечивающая рост доходов. Устойчивые виды деятельности арендаторов — низкий риск смены. Локация с выраженной жилой аудиторией и удобной транспортной доступностью.
Чтобы получить ПОДРОБНУЮ ПРЕЗЕНТАЦИЮ С ПЛАНИРОВКОЙ И ФОТОГРАФИЯМИ на этот объект, звоните. Высылаем в течение 15 минут по запросу! |
|
| Доп. услуги: | - возможна продажа в кредит |
| Контактная информация | |
| Лот №: | 976088 |
| Контактное лицо: | Апекс |
| Телефон: | 8 (495) 822-78-71 доб.333 |


