Описание объекта лот №: 974041
| Возможное использование: | Свободное назначение Магазины Шоурумы |
| Операция: | Аренда |
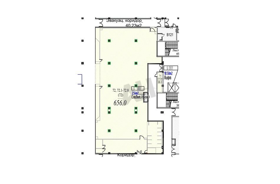
| Площадь: | 656 кв. м |
| Этаж: | 1 |
| Местоположение | |
| Округ: | ЮАО |
| Метро: | Братиславская, Марьино, Алма-Атинская |
| От метро: | 19 мин. пешком |
| Улица: | Поречная ул |
| ИФНС | № 7723 |
| Стоимость и условия | |
| Цена: | 1 312 000 руб. в месяц 24 000 руб. за 1м2 в год Сообщить о снижении цены ![]() |
| Форма налогообложения собственника: | НДС |
| Обеспечительный платеж: | 1 месяц |
| Эксплуатационные расходы включены: | ✓ |
| Характеристики | |
| Тип здания: | Торговые центры |
| Этажность здания: | 5 |
| Наличие кондиционирования: | ✓ |
| Наличие лифта: | ✓ |
| Круглосуточный доступ: | ✓ |
| Наличие паркинга: | ✓ |
| Наличие общепита в здании: | ✓ |
| Описание | |
|
Лот №974041 Предлагается к аренде ПСН общей площадью 656 м². Полезная площадь объекта соответствует арендуемой. Помещение расположено на 1-м этаже, имеет смешанную планировку и отличается высокими потолками от 3 до 5 метров. 19 минут пешком от м. Братиславская. Объект обладает дизайнерской отделкой и панорамным витринным остеклением. Для комфортной работы в помещении подведены все необходимые инженерные коммуникации. Вход осуществляется непосредственно из здания, доступ свободный. Помещение сдаётся без мебели и полностью готово к въезду. Юридический адрес предоставляется. Назначение помещения — шоурум или магазин. Приглашаем вас на просмотр! Звоните! Стоимость аренды: 24 000 руб/м2/год (1 312 000 руб. в месяц). В цену включено: эксплуатационные расходы. В цену не включено: затраты на электричество, коммунальные расходы, уборка.
Чтобы получить ПОДРОБНУЮ ПРЕЗЕНТАЦИЮ С ПЛАНИРОВКОЙ И ФОТОГРАФИЯМИ на этот объект, звоните. Высылаем в течение 15 минут по запросу! |
|
| Контактная информация | |
| Лот №: | 974041 |
| Контактное лицо: | Кира Константиновна |
| Телефон: | 8 (495) 822-78-71 доб.246 |


