Описание объекта лот №: 949195
| Возможное использование: | Магазины Автосалоны Аптеки Павильоны Новостройки |
| Операция: | Продажа |
| Площадь: | 2495 кв. м |
| Этаж: | 1 |
| Местоположение | |
| Округ: | ЗАО |
| Метро: | Шелепиха (МЦК), Фили, Кутузовская |
| Улица: | Шмитовский проезд |
| ИФНС | № 7703 |
| Стоимость и условия | |
| Цена: |
1 660 000 000 руб. Сообщить о снижении цены
|
| Форма налогообложения собственника: | НДС |
| Срок окупаемости: | 10 лет |
| Обеспечительный платеж: | Без залога |
| Характеристики | |
| Тип здания: | Жилые дома |
| Отдельный вход: | ✓ |
| Этажность здания: | 35 |
| Наличие кондиционирования: | ✓ |
| Круглосуточный доступ: | ✓ |
| Наличие общепита в здании: | ✓ |
| Тип окон: | витринные |
| Электрическая мощность, кВт: | 660 |
| Описание | |
|
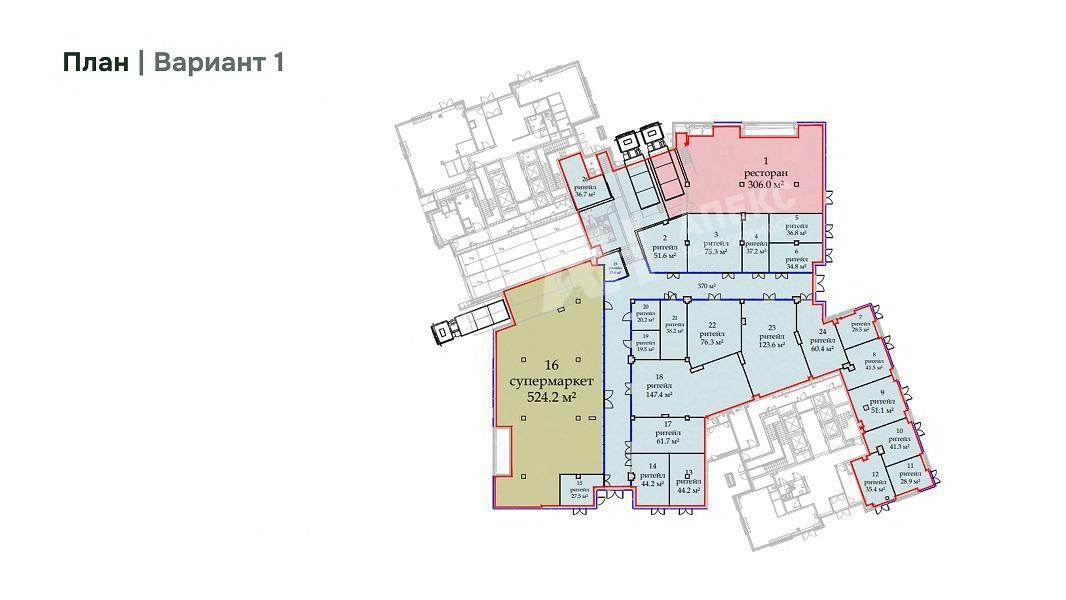
Лот №949195 К продаже предлагается торговая галерея на первом этаже жилого комплекса бизнес-класса «Шелепиха». Комплекс состоит из двух 36-этажных башен, объединенных стилобатной частью, где и располагается галерея, общей площадью 2495 кв. м. Объект возводится в самом западном районе престижного ЦАО, в непосредственной близости от делового центра «Москва-Сити». Помещение характеризуется выгодным расположением на первой линии. Высота потолков составляет 7,25 метра, предусмотрена электрическая мощность 660 кВт и технологическая вытяжка. Для удобства функционирования объекта имеются три зоны разгрузки. Локация обладает исключительной пешеходной и транспортной доступностью. В прямой видимости находится станция метро «Шелепиха», напротив входа расположена автобусная остановка «Метро Шелепиха» и пешеходный переход. В 2026 году запланировано открытие дополнительной станции метро и транспортно-пересадочного узла. Инфраструктурное окружение демонстрирует высокий потенциал покупательского трафика. В радиусе 500 метров расположено более 8000 квартир. В 300 метрах от объекта находится новый бизнес-центр «ICITY» общей площадью 230 000 м². Ввод объекта в эксплуатацию запланирован на второй квартал 2026 года. Приобретение помещения осуществляется по схеме договора участия в долевом строительстве.
Чтобы получить ПОДРОБНУЮ ПРЕЗЕНТАЦИЮ С ПЛАНИРОВКОЙ И ФОТОГРАФИЯМИ на этот объект, звоните. Высылаем в течение 15 минут по запросу! |
|
| Доп. услуги: | - возможна продажа в кредит |
| Контактная информация | |
| Лот №: | 949195 |
| Контактное лицо: | Егор Викторович |
| Телефон: | 8 (495) 822-78-71 доб.221 |


