Описание объекта лот №: 945352
| Возможное использование: | Свободное назначение Аптеки Банки Бытовые услуги Магазины Медцентры Офисы Салоны красоты Шоурумы Новостройки |
| Операция: | Продажа |
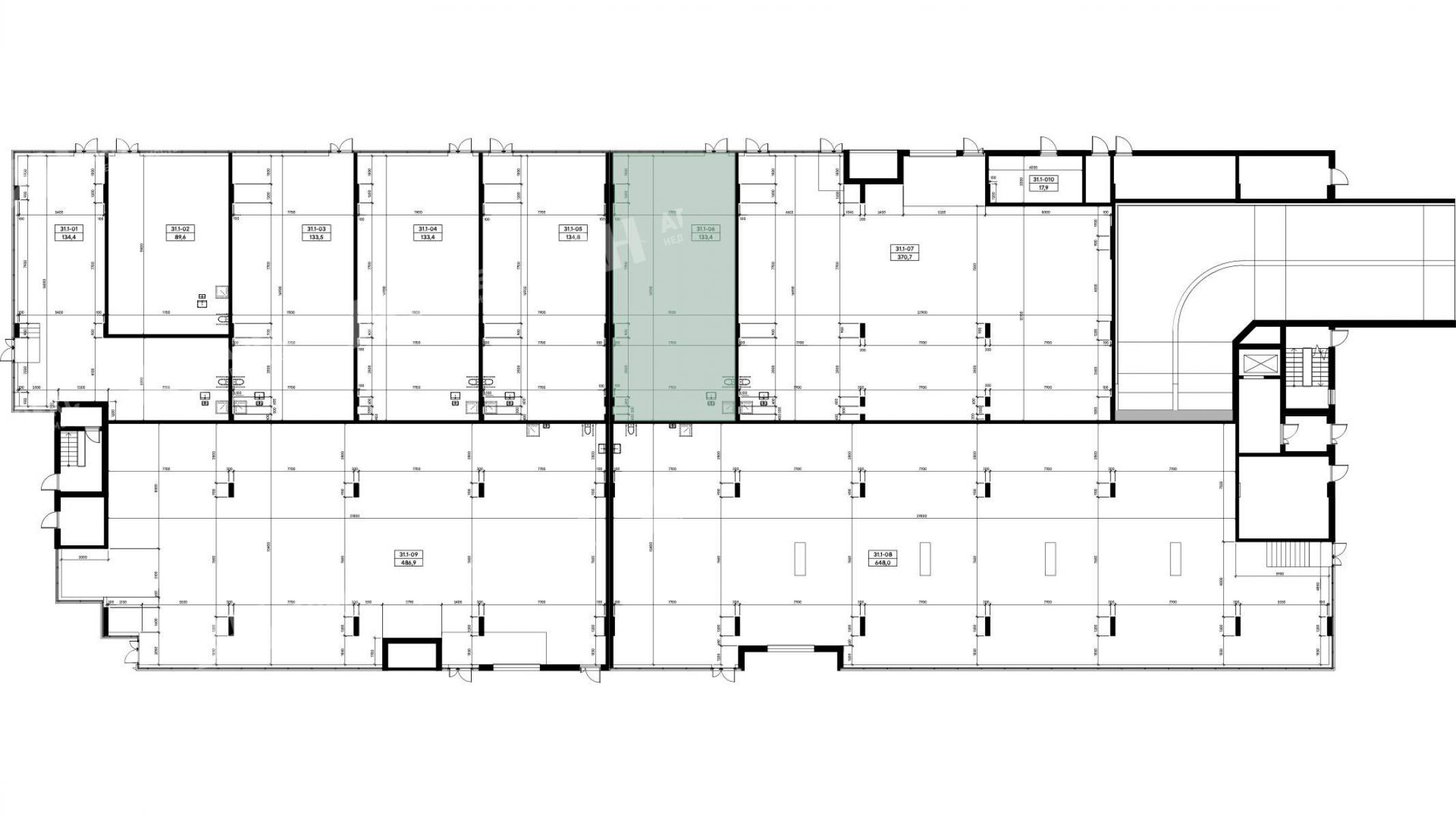
| Площадь: | 133.4 кв. м |
| Этаж: | 1 |
| Местоположение | |
| Город: | Коммунарка, Московский |
| Метро: | Прокшино, Филатов Луг, Ольховая |
| Улица: | Калужское шоссе |
| ИФНС | № 7751 |
| Стоимость и условия | |
| Цена: |
37 011 830 руб. Сообщить о снижении цены
|
| Срок окупаемости: | 9 лет |
| Характеристики | |
| Тип здания: | Жилые дома |
| Этажность здания: | 7 |
| Срок сдачи: | 2027 г. (4 кв.) |
| Описание | |
|
Лот №945352 Предлагается к приобретению коммерческое помещение свободного назначения общей площадью 133,4 м². Помещение характеризуется высотой потолков 2,99 метра и разрешенной мощностью 27,0 кВт. В здании предусмотрена система вентиляции, имеется один вход. Отделка и витринное остекление в помещении отсутствуют. Для приобретения коммерческих помещений действуют специальные ипотечные программы. Доступна ипотека с возвратом 1,01% и первоначальным взносом от 30%, а также стандартная ипотека от 4,5%. Объект расположен в жилом районе «Прокшино» в юго-западной части Москвы, в 500 метрах от одноименной станции метро. В составе формирующегося кластера запланировано строительство крупного торгово-офисного центра и всесезонного спортивно-развлекательного комплекса. Инфраструктура района включает детский сад, физкультурно-оздоровительный комплекс с бассейнами и супермаркет. Помещения обладают выгодной локацией с видимостью с Калужского шоссе. Помещения в районе представлены в различных форматах площадью от 25 м² до 2000 м², что позволяет реализовать любой бизнес-проект. Предусмотрена свободная планировка, возможность объединения лотов и организация антресолей. Срок сдачи объекта запланирован на четвертый квартал 2027 года.
Чтобы получить ПОДРОБНУЮ ПРЕЗЕНТАЦИЮ С ПЛАНИРОВКОЙ И ФОТОГРАФИЯМИ на этот объект, звоните. Высылаем в течение 15 минут по запросу! |
|
| Доп. услуги: | - возможна продажа в кредит |
| Контактная информация | |
| Лот №: | 945352 |
| Контактное лицо: | НОВОСТРОЙКИ |
| Телефон: | 8 (495) 822-78-71 доб.211 |


