Описание объекта лот №: 1059028
| Возможное использование: | Свободное назначение Аптеки Банки Кафе/рестораны Магазины Медцентры Офисы Фитнес Новостройки |
| Операция: | Продажа |
| Площадь: | 308.4 кв. м |
| Этаж: | 1 - 2-й |
| Местоположение | |
| Город: | Коммунарка, Московский |
| Метро: | Прокшино, Филатов Луг, Ольховая |
| Улица: | Калужское шоссе |
| ИФНС | № 7751 |
| Стоимость и условия | |
| Цена: |
90 179 244 руб. Сообщить о снижении цены
|
| Срок окупаемости: | 10 лет |
| Обеспечительный платеж: | Без залога |
| Характеристики | |
| Тип здания: | Жилые дома |
| Отдельный вход: | ✓ |
| Этажность здания: | 19 |
| Возможность подъезда фуры: | ✓ |
| Круглосуточный доступ: | ✓ |
| Наличие паркинга: | ✓ |
| Тип окон: | витринные |
| Электрическая мощность, кВт: | 93 |
| Срок сдачи: | 2027 г. (4 кв.) |
| Описание | |
|
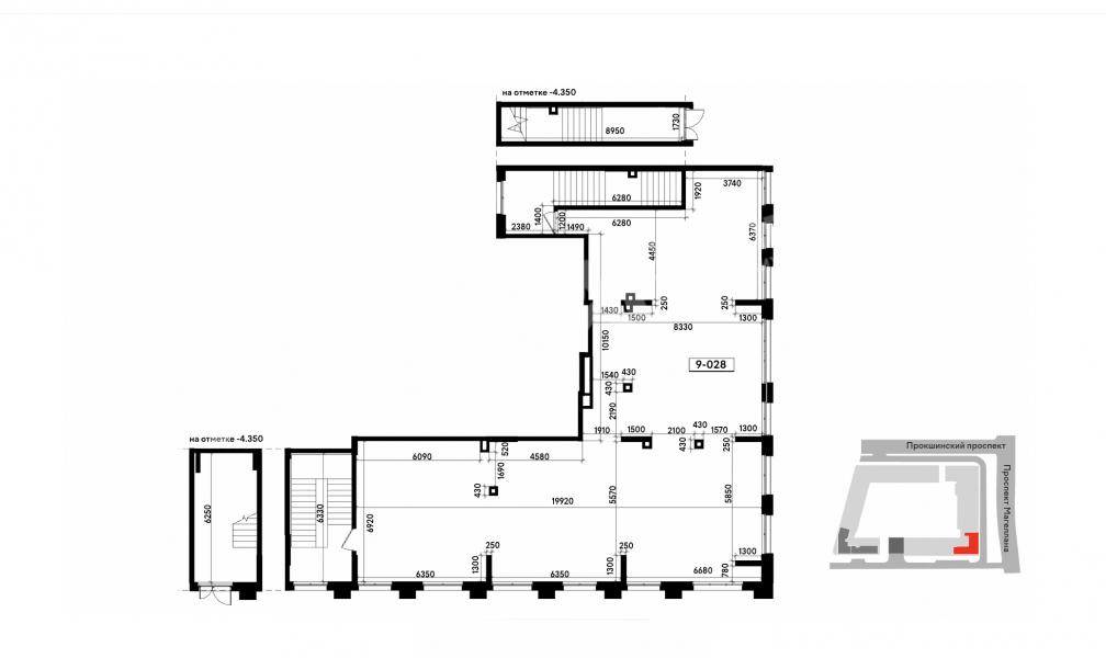
Лот №1059028 Торговое помещение 308,4 м² под ресторан в ЖК «Прокшино» | 93 кВт | 2 этажа | 2 входа | Метро 8 минут | Уникальное предложение для рестораторов и инвесторов. Продаётся двухуровневое торговое помещение в самом сердце жилого района «Прокшино». Объект обладает всеми необходимыми характеристиками для открытия ресторана, кафе или другого формата общепита «под ключ». Гигантская аудитория: жилой район «Прокшино» рассчитан на 38 000 жителей - это колоссальный спрос на товары и услуги, особенно на качественный общепит в шаговой доступности. Супер-локация у метро: всего 8 минут пешком от станции метро «Прокшино» - ежедневный пассажиропоток гарантирует высокую проходимость и постоянный приток новых клиентов. Растущий актив: район активно развивается, вводятся новые корпуса, инфраструктура - цена на коммерцию будет только расти. Характеристики, созданные для ресторана: Площадь: 308,4 м² на двух уровнях (1 и 2 этажи) — достаточно пространства для просторного зала, кухни и дополнительных зон. Энергия для кухни: Выделенная мощность 93 кВт — этого хватит для самого мощного профессионального оборудования без ограничений. Готовность к общепиту: в помещении предусмотрены технологические решения для общественного питания (усиленная вентиляция: 500x350, 250x250, Ø100, канализация, водоснабжение). Планировка: Высота потолков от 3,11 до 4,33 метра, нагрузка на пол 800 кг/м². Два отдельных входа — можно организовать раздельные входы на разных уровнях или объединить их в единое пространство. Коммуникации: Холодное и горячее водоснабжение, канализация, пожарная сигнализация — всё готово к подключению. Идеальный объект для: Запуска собственного ресторана, кафе, пекарни или кофейни в районе с платёжеспособной аудиторией. Инвестирования в готовый арендный бизнес с потенциалом сдачи под сетевой общепит. Долгосрочного вложения в ликвидную коммерческую недвижимость Новой Москвы.
Чтобы получить ПОДРОБНУЮ ПРЕЗЕНТАЦИЮ С ПЛАНИРОВКОЙ И ФОТОГРАФИЯМИ на этот объект, звоните. Высылаем в течение 15 минут по запросу! |
|
| Доп. услуги: | - возможна продажа в кредит |
| Контактная информация | |
| Лот №: | 1059028 |
| Контактное лицо: | Юлия |
| Телефон: | 8 (495) 822-78-71 доб.244 |


