Описание объекта лот №: 945349
| Возможное использование: | Свободное назначение Аптеки Банки Бытовые услуги Магазины Медцентры Офисы Салоны красоты Шоурумы Новостройки |
| Операция: | Продажа |
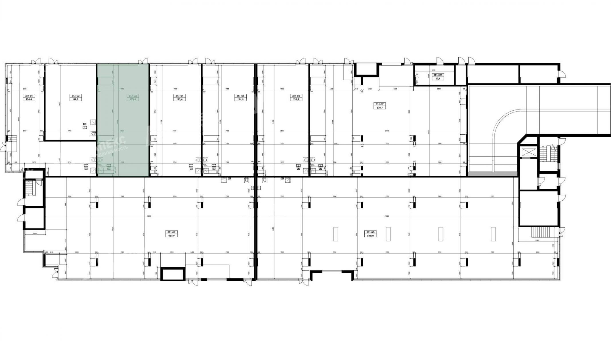
| Площадь: | 133.5 кв. м |
| Этаж: | 1 |
| Местоположение | |
| Город: | Коммунарка, Московский |
| Метро: | Прокшино, Филатов Луг, Ольховая |
| Улица: | Калужское шоссе |
| ИФНС | № 7751 |
| Стоимость и условия | |
| Цена: |
38 306 490 руб. Сообщить о снижении цены
|
| Срок окупаемости: | 9 лет |
| Делимся комиссией: | ✓ |
| Характеристики | |
| Тип здания: | Бизнес центры класса А |
| Этажность здания: | 7 |
| Срок сдачи: | 2027 г. (4 кв.) |
| Описание | |
|
Лот №945349 Выплачиваем вознаграждение! Предлагается к приобретению коммерческое помещение общей площадью 133,5 м², расположенное на одном этаже. Высота потолков составляет 3,54 метра. Помещение имеет свободное назначение, без отделки, с одним входом и без витринного остекления. Разрешенная мощность электроэнергии — 27,0 кВт, система вентиляции включает каналы диаметром 160 мм и 100 мм. Для вашего удобства доступны специальные финансовые условия. Действует ипотечная программа со ставкой от 4,5% годовых, а также уникальное предложение с возвратом ипотеки 1,01%. Первоначальный взнос начинается от 30%. Объект находится в развивающемся жилом районе «Прокшино» в юго-западной части Москвы, в 500 метрах от станции метро «Прокшино» и в 7 км от МКАД. Район является частью масштабного кластера, где запланировано строительство крупного торгово-офисного центра и всесезонного спортивно-развлекательного комплекса. Инфраструктура включает детский сад, физкультурно-оздоровительный комплекс с бассейнами и супермаркет. Помещения в данном комплексе представлены в широком диапазоне площадей от 25 м² до 2000 м², что позволяет реализовать различные бизнес-проекты. Для покупателей доступен интерактивный подбор помещений и опция выбора лота с акцептом франшизы. Сдача объекта в эксплуатацию запланирована на четвертый квартал 2027 года.
Чтобы получить ПОДРОБНУЮ ПРЕЗЕНТАЦИЮ С ПЛАНИРОВКОЙ И ФОТОГРАФИЯМИ на этот объект, звоните. Высылаем в течение 15 минут по запросу!
Уважаемые коллеги, мы работаем по этому объекту с посредниками и делимся комиссией в соответствии с нашей партнерской программой! |
|
| Доп. услуги: | - возможна продажа в кредит |
| Контактная информация | |
| Лот №: | 945349 |
| Контактное лицо: | НОВОСТРОЙКИ |
| Телефон: | 8 (495) 822-78-71 доб.211 |


