Описание объекта лот №: 945346
| Возможное использование: | Свободное назначение Аптеки Банки Бытовые услуги Магазины Медцентры Офисы Салоны красоты Шоурумы Новостройки |
| Операция: | Продажа |
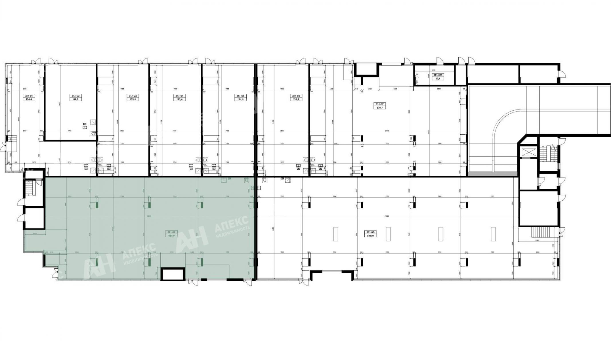
| Площадь: | 486.9 кв. м |
| Этаж: | 1 |
| Местоположение | |
| Город: | Коммунарка, Московский |
| Метро: | Прокшино, Филатов Луг, Ольховая |
| Улица: | Калужское шоссе |
| ИФНС | № 7751 |
| Стоимость и условия | |
| Цена: |
177 465 312 руб. Сообщить о снижении цены
|
| Срок окупаемости: | 9 лет |
| Делимся комиссией: | ✓ |
| Характеристики | |
| Тип здания: | Бизнес центры класса А |
| Этажность здания: | 7 |
| Срок сдачи: | 2027 г. (4 кв.) |
| Описание | |
|
Лот №945346 Выплачиваем вознаграждение! Предлагается к приобретению коммерческое помещение свободного назначения общей площадью 486,9 м². Помещение расположено на одном этаже, высота потолков составляет 5,04 метра. Объект обладает значительной разрешенной мощностью — 147,0 кВт, оснащен системой вентиляции и имеет три входа. Отделка в помещении отсутствует, витринное остекнение не предусмотрено. Застройщик А101 предоставляет уникальные условия финансирования. Доступна ипотека на коммерческие помещения со ставкой от 4,5% годовых, а также специальное предложение с возвратом ипотеки 1,01%. Первоначальный взнос начинается от 30%. Объект находится в строящемся жилом районе «Прокшино» в юго-западной части Москвы, в 500 метрах от одноименной станции метро. Район обладает развитой инфраструктурой, включающей будущие крупные торгово-офисный и спортивно-развлекательный комплексы. Помещения в кластере представлены в различных форматах, что позволяет реализовать любой бизнес-проект. Транспортная доступность обеспечивается близостью к станции метро «Прокшино». Выезд на Соловьиный проезд находится в 100 метрах, обеспечивая удобный выезд на Калужское и Киевское шоссе, а также на МКАД. Срок сдачи объекта запланирован на четвертый квартал 2027 года.
Чтобы получить ПОДРОБНУЮ ПРЕЗЕНТАЦИЮ С ПЛАНИРОВКОЙ И ФОТОГРАФИЯМИ на этот объект, звоните. Высылаем в течение 15 минут по запросу!
Уважаемые коллеги, мы работаем по этому объекту с посредниками и делимся комиссией в соответствии с нашей партнерской программой! |
|
| Доп. услуги: | - возможна продажа в кредит |
| Контактная информация | |
| Лот №: | 945346 |
| Контактное лицо: | НОВОСТРОЙКИ |
| Телефон: | 8 (495) 822-78-71 доб.211 |


