Описание объекта лот №: 1078324
| Возможное использование: | Свободное назначение Аптеки Банки Бытовые услуги Магазины Медцентры Офисы Салоны красоты Шоурумы Новостройки |
| Операция: | Продажа |
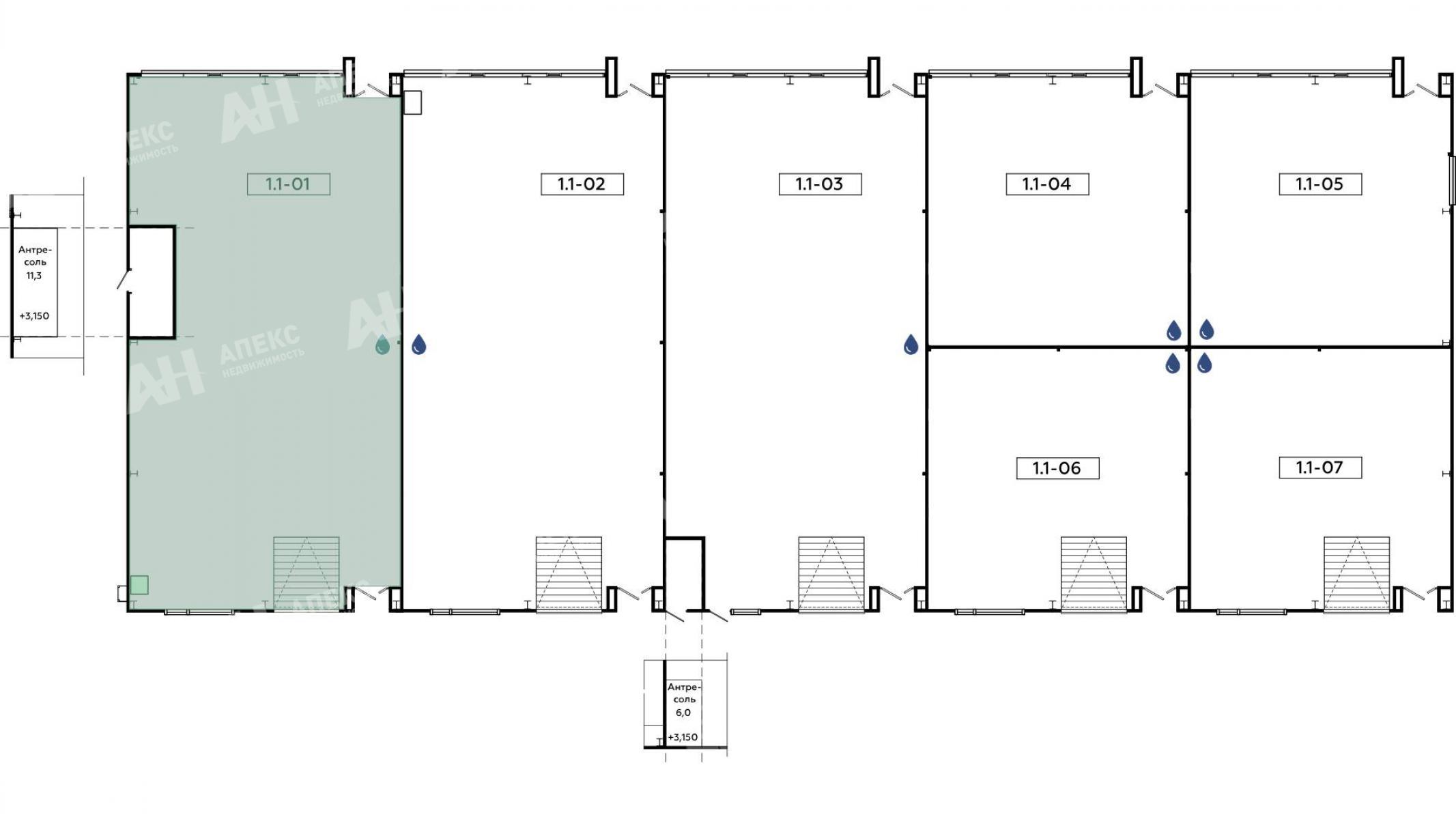
| Площадь: | 295.8 кв. м |
| Этаж: | 1 |
| Местоположение | |
| Город: | Коммунарка, Щербинка |
| Метро: | Потапово, Коммунарка, Бунинская аллея |
| Улица: | Калужское шоссе |
| ИФНС | № 7751 |
| Стоимость и условия | |
| Цена: |
67 646 502 руб. Сообщить о снижении цены
|
| Срок окупаемости: | 9 лет |
| Характеристики | |
| Тип здания: | Жилые дома |
| Этажность здания: | 1 |
| Срок сдачи: | 2028 г. (1 кв.) |
| Описание | |
|
Лот №1078324 Продажа коммерческого помещения площадью 295,8 м2. Помещение свободного назначения под любой вид деятельности (медцентр, салон красоты, парикмахерская, офис, ресторан, бар, банк, бытовые услуги, торговое помещение, магазин и.т.д) Адрес объекта отсутствует на Яндекс картах, поэтому указан ближайший точный адрес
Чтобы получить ПОДРОБНУЮ ПРЕЗЕНТАЦИЮ С ПЛАНИРОВКОЙ И ФОТОГРАФИЯМИ на этот объект, звоните. Высылаем в течение 15 минут по запросу! |
|
| Доп. услуги: | - возможна продажа в кредит |
| Контактная информация | |
| Лот №: | 1078324 |
| Контактное лицо: | НОВОСТРОЙКИ |
| Телефон: | 8 (495) 822-78-71 доб.211 |


