Описание объекта лот №: 1069951
| Возможное использование: | Офисы Банки Новостройки |
| Операция: | Продажа |
| Площадь: | 594.7 кв. м |
| Этаж: | 1 - 2-й |
| Местоположение | |
| Город: | Коммунарка, Московский |
| Метро: | Прокшино, Филатов Луг, Ольховая |
| Улица: | Калужское шоссе |
| ИФНС | № 7751 |
| Стоимость и условия | |
| Цена: |
176 483 172 руб. Сообщить о снижении цены
|
| Форма налогообложения собственника: | НДС |
| Срок окупаемости: | 10 лет |
| Характеристики | |
| Тип здания: | Бизнес центры класса А |
| Этажность здания: | 11 |
| Наличие кондиционирования: | ✓ |
| Наличие лифта: | ✓ |
| Наличие пропускной системы: | ✓ |
| Наличие паркинга: | ✓ |
| Тип окон: | витринные |
| Электрическая мощность, кВт: | 48 |
| Срок сдачи: | 2027 г. (3 кв.) |
| Описание | |
|
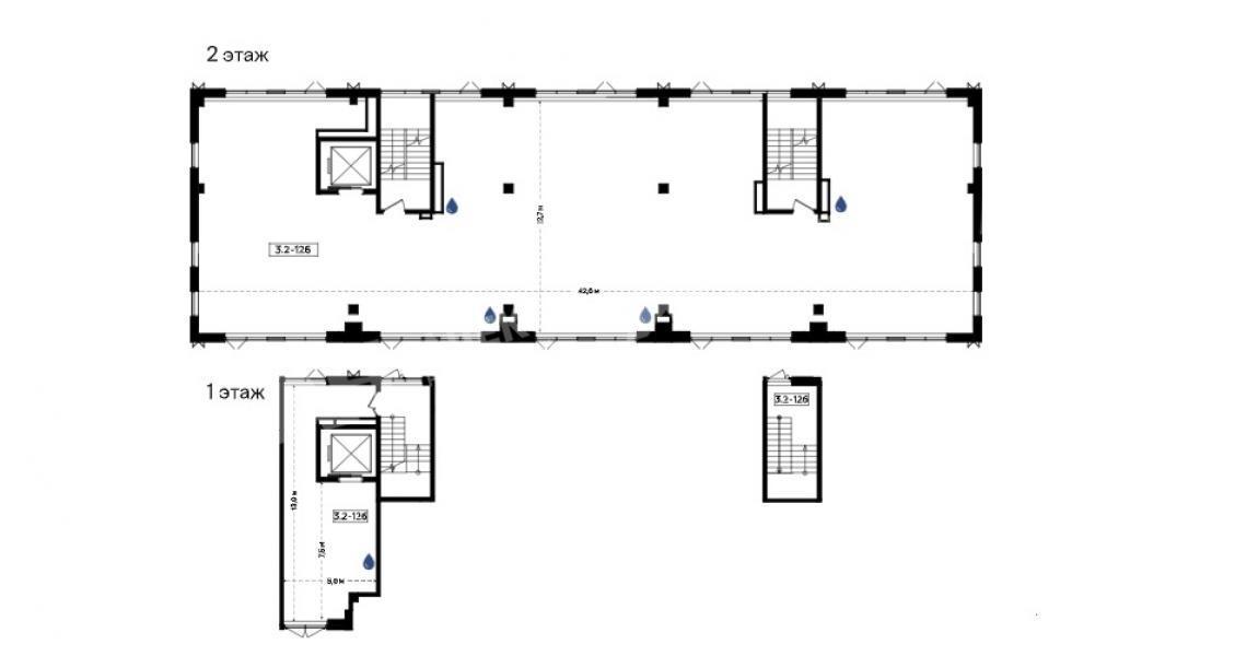
Лот №1069951 Продается офисное помещение в бизнес-центре класса А — 594.7 м2 в бизнес-квартале «Прокшино» Помещение имеет вход с 1 этажа и располагается на 2 этаже в современной офисной башне нового делового района Москвы. 2 минуты пешком от метро «Прокшино» Удобный выезд на Киевское и Калужское шоссе Около 15 минут до аэропорта Внуково Подземный и наземный паркинг Ключевые параметры: Планировка: openspace Наличие мокрых точек Современное остекление с функцией проветривания Высота потолков: 3.6 метра Инженерия и технологии: Приточно-вытяжная вентиляция с рекуперацией Кондиционирование Управление климатом по рабочим зонам Автоматизированная система проветривания Система бронирования переговорных Электрическая мощность — 48 кВт 6 пассажирских лифтов + 1 сервисный Возможна аренда машиномест Подойдет как для сдачи в аренду (готовый арендный бизнес), так и под офис компании, представительство. Готовность - 2027 год
Чтобы получить ПОДРОБНУЮ ПРЕЗЕНТАЦИЮ С ПЛАНИРОВКОЙ И ФОТОГРАФИЯМИ на этот объект, звоните. Высылаем в течение 15 минут по запросу! |
|
| Доп. услуги: | - возможна продажа в кредит |
| Контактная информация | |
| Лот №: | 1069951 |
| Контактное лицо: | Наталья |
| Телефон: | 8 (495) 822-78-71 доб.202 |


