Описание объекта лот №: 1012508
| Возможное использование: | Свободное назначение Аптеки Банки Бытовые услуги Магазины Медцентры Офисы Салоны красоты Шоурумы Новостройки |
| Операция: | Продажа |
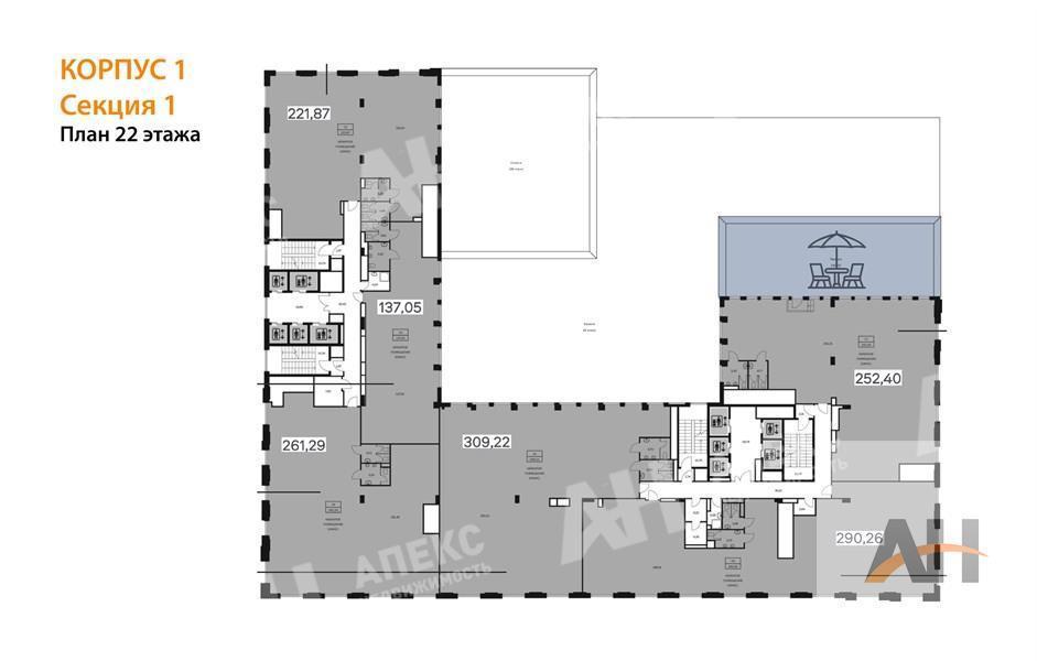
| Площадь: | 137.1 кв. м |
| Этаж: | 22 |
| Местоположение | |
| Город: | Крёкшино, Марушкино |
| Улица: | Киевское шоссе |
| ИФНС | № 7751 |
| Стоимость и условия | |
| Цена: |
59 610 072 руб. Сообщить о снижении цены
|
| Характеристики | |
| Тип здания: | Жилые дома |
| Этажность здания: | 26 |
| Наличие лифта: | ✓ |
| Наличие паркинга: | ✓ |
| Электрическая мощность, кВт: | 27 |
| Срок сдачи: | 2026 г. (3 кв.) |
| Описание | |
|
Лот №1012508 Предлагается к продаже коммерческое помещение площадью 137,05 кв. м на 22 этаже в бизнес-комплексе WAFI2B TAGILSKAYA. Объект расположен в первой очереди строительства, корпус 1. Общее количество этажей в здании составляет 26. Помещение имеет статус свободного назначения, что позволяет разместить широкий спектр бизнесов. Наиболее типичные варианты использования включают медицинский центр, салон красоты, парикмахерскую, офисные пространства, ресторан или бар, банковское отделение, предприятия бытовых услуг, а также торговые помещения и магазины. Сдача объекта в эксплуатацию запланирована на третий квартал 2026 года. Адрес объекта отсутствует на Яндекс картах, поэтому указан ближайший точный адрес
Чтобы получить ПОДРОБНУЮ ПРЕЗЕНТАЦИЮ С ПЛАНИРОВКОЙ И ФОТОГРАФИЯМИ на этот объект, звоните. Высылаем в течение 15 минут по запросу! |
|
| Доп. услуги: | - возможна продажа в кредит |
| Контактная информация | |
| Лот №: | 1012508 |
| Контактное лицо: | НОВОСТРОЙКИ |
| Телефон: | 8 (495) 822-78-71 доб.211 |


