Описание объекта лот №: 998641
| Возможное использование: | Свободное назначение Аптеки Бытовые услуги Кафе/рестораны Магазины Офисы Салоны красоты Сауны Фотостудии Шоурумы Новостройки |
| Операция: | Продажа |
| Площадь: | 97 кв. м |
| Этаж: | 1 |
| Местоположение | |
| Город: | Котельники, Люберцы |
| Метро: | Лермонтовский проспект, Жулебино, Котельники |
| Улица: | Новорязанское шоссе |
| ИФНС | № 5027 |
| Стоимость и условия | |
| Цена: |
35 000 000 руб. Сообщить о снижении цены
|
| Срок окупаемости: | 9 лет |
| Обеспечительный платеж: | Без залога |
| Характеристики | |
| Тип здания: | Жилые дома |
| Отдельный вход: | ✓ |
| Этажность здания: | 25 |
| Круглосуточный доступ: | ✓ |
| Электрическая мощность, кВт: | 19 |
| Срок сдачи: | 2026 г. (3 кв.) |
| Описание | |
|
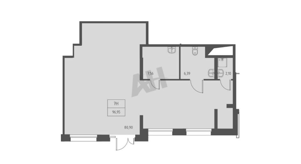
Лот №998641 Продаётся помещение свободного назначения 97 м², ЖК «Тропарево Парк» О помещении: Площадь — 97 м². Первый этаж жилого дома бизнес-класса. Свободная планировка, возможна делимость на два блока. Три витринных окна по фасаду. Высота потолков — 4 м. Электрическая мощность — 19 кВт с возможностью увеличения. Отдельный вход с первой линии. Возможна алкогольная лицензия. Помещение без отделки, подходит под магазин, аптеку, кофейню, услуги, ПВЗ. Ввод корпуса — до июля 2026 года. Локация: Первая линия на выезде из района, фасад ориентирован на проезжую часть. Помещение «смотрит» на основной поток в сторону МКАД и Киевского шоссе. Рядом — действующий бизнес-центр класса А, формирующий внешний дневной трафик. В пешей доступности метро «Румянцево». ЖК расположен сразу за МКАД, престижное юго-западное направление. Преимущества: Трафиковая фасадная локация на выезде из района. Высотный комплекс с высокой ёмкостью рынка: 8 корпусов по 25 этажей. Апартаменты с полной отделкой — быстрое заселение. Дефицит современных торговых помещений в окружении частного сектора. Универсальный формат под бизнес ежедневного спроса. Показ по договорённости.
Чтобы получить ПОДРОБНУЮ ПРЕЗЕНТАЦИЮ С ПЛАНИРОВКОЙ И ФОТОГРАФИЯМИ на этот объект, звоните. Высылаем в течение 15 минут по запросу! |
|
| Доп. услуги: | - возможна продажа в кредит |
| Контактная информация | |
| Лот №: | 998641 |
| Контактное лицо: | Апекс |
| Телефон: | 8 (495) 822-78-71 доб.333 |


