Описание объекта лот №: 998612
| Возможное использование: | Свободное назначение Аптеки Бытовые услуги Кафе/рестораны Магазины Офисы Салоны красоты Сауны Фотостудии Шоурумы |
| Операция: | Продажа |
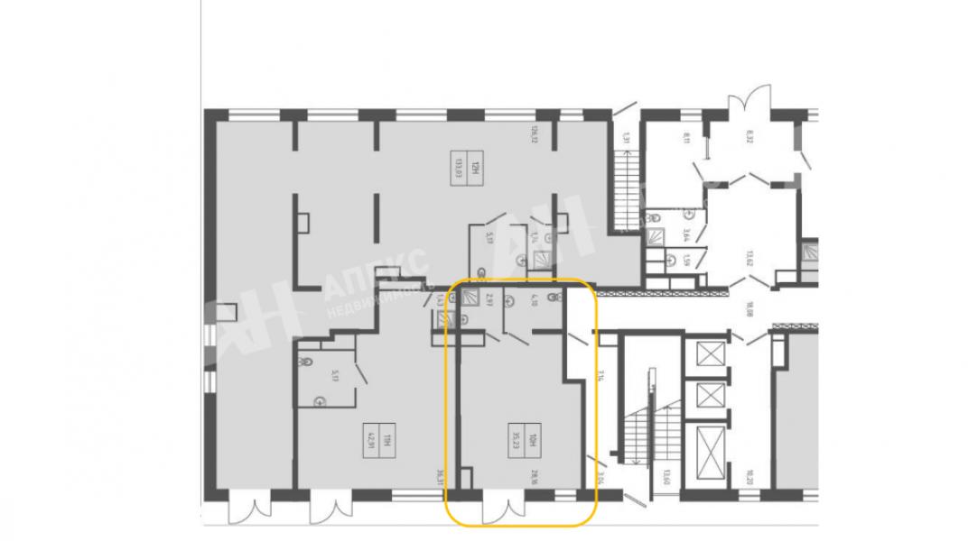
| Площадь: | 35 кв. м |
| Этаж: | 1 |
| Местоположение | |
| Город: | Люберцы, Котельники |
| Метро: | Тютчевская, Косино, Лухмановская |
| Улица: | Новорязанское шоссе |
| ИФНС | № 7720 |
| Стоимость и условия | |
| Цена: |
15 000 000 руб. Сообщить о снижении цены
|
| Срок окупаемости: | 9 лет |
| Обеспечительный платеж: | Без залога |
| Характеристики | |
| Тип здания: | Жилые дома |
| Отдельный вход: | ✓ |
| Этажность здания: | 23 |
| Круглосуточный доступ: | ✓ |
| Наличие паркинга: | ✓ |
| Электрическая мощность, кВт: | 7 |
| Описание | |
|
Лот №998612 Продаётся помещение свободного назначения 35,2 м², ЖК «Новоград Павлино» О помещении: Площадь — 35,2 м². Первый этаж жилого дома, формат стрит-ритейл. Отдельный вход с фасада, витринное окно. Свободная планировка, высота потолков — 4 м. Электрическая мощность — 7 кВт, возможное увеличение. Помещение без отделки, готово к адаптации под любой формат: магазин, услуги, кофейня, ПВЗ. Дом построен, ввод в эксплуатацию — 2025 год, ключи до марта 2026 года. Локация: Первая линия Павлинского шоссе — основная транспортная артерия района. Помещение расположено на въезде в жилой массив, напротив выхода с платной парковки. Прямая видимость от остановки общественного транспорта. Плотно заселённый район комфорт-класса, сформированный спрос на сервисы и ритейл. Удобный выезд в Москву по трассе М12, транспортная доступность к метро и МЦД. Преимущества: Трафиковая локация на въезде в район. Фасад с хорошей визуальной экспозицией. Открытая планировка и высокий потолок. Дефицит коммерческих помещений в существующей застройке. Подходит под формат малого ритейла ежедневного спроса. Показ по договорённости.
Чтобы получить ПОДРОБНУЮ ПРЕЗЕНТАЦИЮ С ПЛАНИРОВКОЙ И ФОТОГРАФИЯМИ на этот объект, звоните. Высылаем в течение 15 минут по запросу! |
|
| Доп. услуги: | - возможна продажа в кредит |
| Контактная информация | |
| Лот №: | 998612 |
| Контактное лицо: | Апекс |
| Телефон: | 8 (495) 822-78-71 доб.333 |


