Описание объекта лот №: 986486
| Возможное использование: | Свободное назначение Аптеки Бытовые услуги Кафе/рестораны Магазины Нотариусы/турфирмы Салоны красоты Шоурумы |
| Операция: | Продажа |
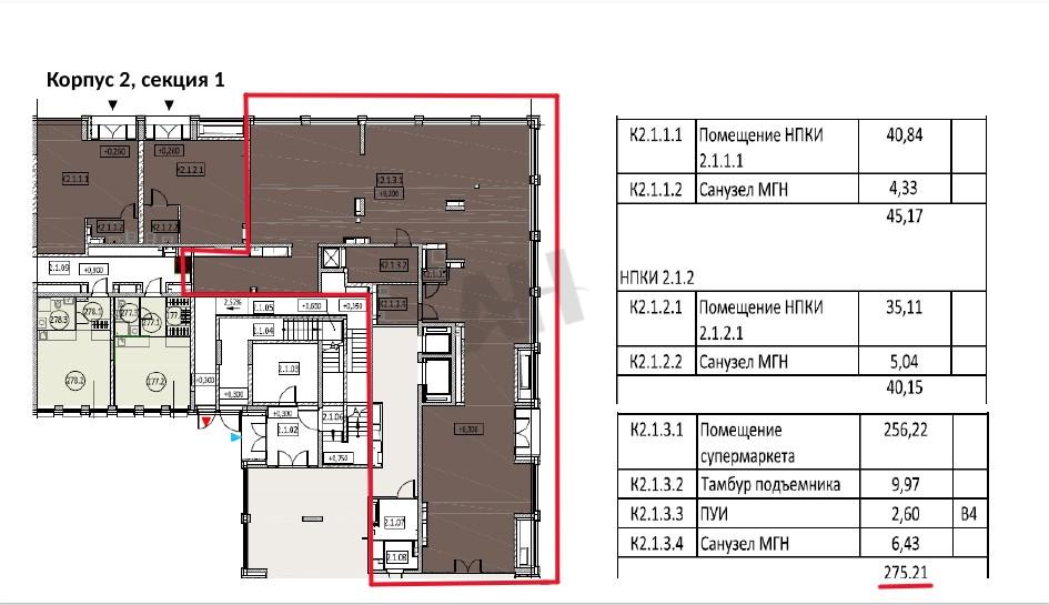
| Площадь: | 275.2 кв. м |
| Этаж: | 1 |
| Местоположение | |
| Округ: | ЮАО |
| Метро: | Тульская, ЗИЛ (МЦК), Автозаводская |
| От метро: | 12 мин. пешком |
| Улица: | Автозаводская ул |
| ИФНС | № 7725 |
| Стоимость и условия | |
| Цена: |
156 594 490 руб. Сообщить о снижении цены
|
| Форма налогообложения собственника: | НДС |
| Срок окупаемости: | 11 лет |
| Обеспечительный платеж: | Без залога |
| Характеристики | |
| Тип здания: | Жилые дома |
| Отдельный вход: | ✓ |
| Этажность здания: | 16 |
| Круглосуточный доступ: | ✓ |
| Наличие паркинга: | ✓ |
| Тип окон: | витринные |
| Описание | |
|
Лот №986486 Предлагается к рассмотрению помещение свободного назначения в строящемся апарт-комплексе бизнес-класса, расположенном на Симоновской набережной. Комплекс представляет собой современный многофункциональный проект в престижном Даниловском районе на границе с Центральным административным округом. Объект имеет свой отдельный вход с улицы и вход из лобби отеля. Помещение обладает свободной планировкой и предоставляет возможности для функционального зонирования. Доступно выгодное предложение на старте продаж. Для будущих арендаторов предусмотрена возможность размещения вывески.. Прилегающая территория благоустроена велодорожками, скамейками и шезлонгами, что формирует эстетичное и комфортное пространство.
Чтобы получить ПОДРОБНУЮ ПРЕЗЕНТАЦИЮ С ПЛАНИРОВКОЙ И ФОТОГРАФИЯМИ на этот объект, звоните. Высылаем в течение 15 минут по запросу! |
|
| Доп. услуги: | - возможна продажа в кредит |
| Контактная информация | |
| Лот №: | 986486 |
| Контактное лицо: | Инесса |
| Телефон: | 8 (495) 822-78-71 доб.237 |


