Описание объекта лот №: 975647
| Возможное использование: | Офисы |
| Операция: | Аренда |
| Тип аренды: | Прямая аренда |
| Площадь: | 284.1 кв. м |
| Этаж: | 5 |
| Местоположение | |
| Округ: | СЗАО |
| Метро: | Смоленская АПЛ, Смоленская ФЛ, Краснопресненская |
| От метро: | 2 мин. пешком |
| Улица: | Новинский б-р |
| ИФНС | № 7704 |
| Стоимость и условия | |
| Цена: | 947 000 руб. в месяц + НДС 40 000 руб. за 1м2 в год + НДС Сообщить о снижении цены ![]() |
| Форма налогообложения собственника: | НДС |
| Обеспечительный платеж: | 1 месяц |
| Эксплуатационные расходы включены: | ✓ |
| Характеристики | |
| Тип здания: | Бизнес центры класса B |
| Этажность здания: | 8 |
| Наличие кондиционирования: | ✓ |
| Наличие лифта: | ✓ |
| Наличие пропускной системы: | ✓ |
| Круглосуточный доступ: | ✓ |
| Кол-во парковочных мест: | 1 |
| Наличие общепита в здании: | ✓ |
| Тип окон: | обычные |
| Описание | |
|
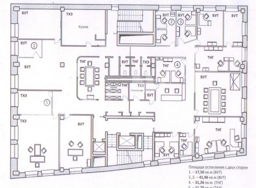
Лот №975647 Арендодатель предлагает в аренду офисный блок общей площадью 284,1 кв.м., расположенный на пятом этаже бизнес-центра "Новинский". Помещение имеет смешанную планировку и характеризуется как большое, светлое и комфортное, с видом на бульвар. Внутренняя структура офиса включает двенадцать кабинетов, переговорные комнаты, зону open space, кухню и зону ресепшен. Бизнес-центр отличается удобным расположением в шаговой доступности от станции метро "Смоленская", путь до которой занимает около двух минут. Офисное помещение полностью готово к эксплуатации и доступно для заезда арендатора. В аренду предоставляется дополнительно 1 машиноместо, 30.000 рублей в месяц. Стоимость аренды: 40 000 руб/м2/год (947 001 руб. в месяц), НДС оплачивается дополнительно. В цену включено: эксплуатационные расходы. В цену не включено: затраты на электричество, коммунальные расходы, уборка.
Чтобы получить ПОДРОБНУЮ ПРЕЗЕНТАЦИЮ С ПЛАНИРОВКОЙ И ФОТОГРАФИЯМИ на этот объект, звоните. Высылаем в течение 15 минут по запросу! |
|
| Контактная информация | |
| Лот №: | 975647 |
| Контактное лицо: | Ирина Владимировна |
| Телефон: | 8 (495) 822-78-71 доб.204 |


