Описание объекта лот №: 1000908
| Возможное использование: | Офисы |
| Операция: | Аренда |
| Площадь: | 2500 кв. м |
| Этаж: | 4 |
| Местоположение | |
| Округ: | СЗАО |
| Метро: | Панфиловская (МЦК), Стрешнево (МЦК), Покровское-Стрешнего (МЦД) |
| От метро: | 10 мин. пешком |
| Улица: | 1-й Волоколамский проезд |
| ИФНС | № 7734 |
| Стоимость и условия | |
| Цена: | 6 500 000 руб. в месяц 31 200 руб. за 1м2 в год Сообщить о снижении цены ![]() |
| Форма налогообложения собственника: | НДС |
| Обеспечительный платеж: | 2 месяца |
| Эксплуатационные расходы включены: | ✓ |
| Характеристики | |
| Тип здания: | Бизнес центры класса B |
| Этажность здания: | 9 |
| Наличие паркинга: | ✓ |
| Описание | |
|
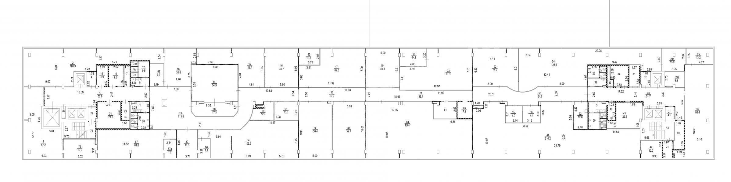
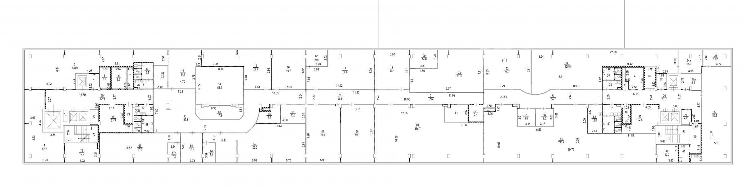
Лот №1000908 Аренда офисного этажа 2500м2 в СЗАО в деловом центр класса B "Диапазон". Ближайшее метро\МЦД Октябрьское поле\Панфиловская до 10 минут пешком. Деловой центр "Диапазон" это 46000 м² офисных и сопутствующих площадей на нескольких гектарах территории. Современные инженерные системы — приточно-вытяжная вентиляция, центральное кондиционирование, система пожарной безопасности. Профессиональная управляющая компания - центральный ресепшн, круглосуточная охрана, системы видеонаблюдения и пропуска. Развитая инфраструктура - не выходя из делового центра доступны кафе - Prime Cafe, столовая — Жираф, мини-маркет, салон красоты, банкомат, фитнес. Предлагаемое помещение занимает 4 этаж целиком. Планировка смешанная. Высота потолков 3+ метра. Видовой этаж. Возможна аренда машиномест на территории БЦ. Звоните, показ в удобное время по предварительной договоренности. Стоимость аренды: 31 200 руб/м2/год (6 500 000 руб. в месяц). В цену включено: эксплуатационные расходы.
Чтобы получить ПОДРОБНУЮ ПРЕЗЕНТАЦИЮ С ПЛАНИРОВКОЙ И ФОТОГРАФИЯМИ на этот объект, звоните. Высылаем в течение 15 минут по запросу! |
|
| Контактная информация | |
| Лот №: | 1000908 |
| Контактное лицо: | Филипп |
| Телефон: | 8 (495) 822-78-71 доб.261 |


