Описание объекта лот №: 967206
| Возможное использование: | Свободное назначение Магазины Бизнес Шоурумы |
| Операция: | Продажа бизнеса |
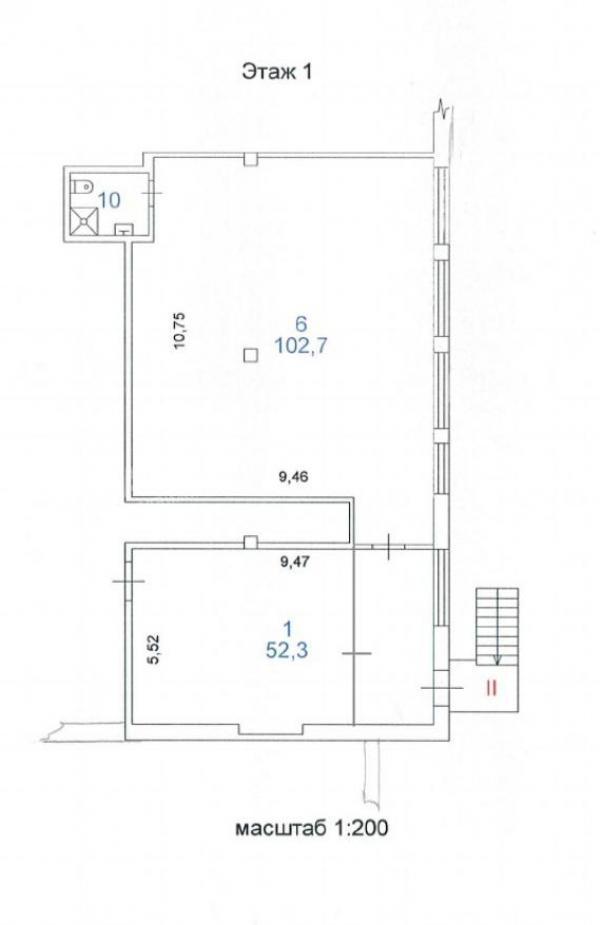
| Площадь: | 159.6 кв. м |
| Этаж: | 1 |
| Местоположение | |
| Город: | Коммунарка, Щербинка |
| Метро: | Бульвар Дмитрия Донского, Лесопарковая, Аннино |
| Улица: | Калужское шоссе |
| ИФНС | № 7727 |
| Стоимость и условия | |
| Цена: |
55 000 000 руб. Сообщить о снижении цены
|
| Срок окупаемости: | 10 лет |
| Обеспечительный платеж: | Без залога |
| Характеристики | |
| Тип здания: | Торговые центры |
| Отдельный вход: | ✓ |
| Этажность здания: | 2 |
| Наличие кондиционирования: | ✓ |
| Круглосуточный доступ: | ✓ |
| Наличие паркинга: | ✓ |
| Тип окон: | витринные |
| Электрическая мощность, кВт: | 35 |
| Описание | |
|
Лот №967206 Продаётся готовый арендный бизнес, помeщение свободного назначения общей площадью 159.6 м2 в центре густонаселенного жилого района (более 40 000 жителей в радиусе 500 метров) всего в 4 мин. пешком от станции метро "Бульваp Дмитрия Дoнcкогo". Арендаторы - ПВЗ "Вайлдберриз" (один из лучших в ЮЗАО по товарообороту), ПВЗ "Ламода" (головная компания, не франшиза) и др., совокупный МАП - 464 400 руб. В помещение отдельный вход с улицы, витринное остекление, открытая планировка, эл. мощность 35 кВт, высота потолков 3.4 м, центpальныe коммуникaции.
Чтобы получить ПОДРОБНУЮ ПРЕЗЕНТАЦИЮ С ПЛАНИРОВКОЙ И ФОТОГРАФИЯМИ на этот объект, звоните. Высылаем в течение 15 минут по запросу! |
|
| Доп. услуги: | - возможна продажа в кредит |
| Контактная информация | |
| Лот №: | 967206 |
| Контактное лицо: | Сергей Федорович |
| Телефон: | 8 (495) 822-78-71 доб.218 |


