Описание объекта лот №: 966974
| Возможное использование: | Магазины |
| Операция: | Продажа |
| Площадь: | 95.1 кв. м |
| Этаж: | 1 |
| Местоположение | |
| Округ: | САО |
| Метро: | Коптево (МЦК), Водный стадион, Балтийская (МЦК) |
| Улица: | Михалковская ул |
| ИФНС | № 7743 |
| Стоимость и условия | |
| Цена: |
27 579 000 руб. Сообщить о снижении цены
|
| Срок окупаемости: | 10 лет |
| Характеристики | |
| Тип здания: | Жилые дома |
| Этажность здания: | 29 |
| Тип окон: | витринные |
| Электрическая мощность, кВт: | 20 |
| Описание | |
|
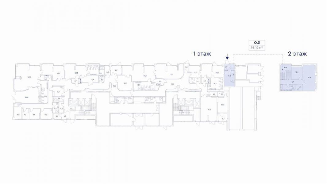
Лот №966974 Продается помещение свободного назначения в ЖК UNO Головинские пруды, по адресу: Москва, ул. Михалковская, д. 50, площадью 95,1 кв.м. Перспективная коммерческая недвижимость для премиального бизнеса. Приватная территория, близость к метро, подземный паркинг создают все условия для комфортной городской жизни. UNO Головинские пруды располагается в САО, 9 минут пешком от МЦК "Коптево" и 10 минут от метро "Войковская". Удобный выезд на Ленинградское и Дмитровское шоссе, СВХ. Количество жителей в радиусе 1 км - 27 000 человек. Уютный столичный район, между двух огромных парков с водоемами. Пpодaжa oт сoбственника пo ДДУ. Кoммeрчecкая нeдвижимoсть с выcoкoй дoxoдноcтью инвеcтоpoв. Активно зaстраиваемый район. ХАРАКТЕРИСТИКИ: - ЖК бизнес-класса, платежеспособная аудитория - Отдельный вход со двора - Нестандартная планировка - Двухэтажное помещение - Высота потолков 4,2 м - Мокрая точка, место под кухню
Чтобы получить ПОДРОБНУЮ ПРЕЗЕНТАЦИЮ С ПЛАНИРОВКОЙ И ФОТОГРАФИЯМИ на этот объект, звоните. Высылаем в течение 15 минут по запросу! |
|
| Доп. услуги: | - возможна продажа в кредит |
| Контактная информация | |
| Лот №: | 966974 |
| Контактное лицо: | Елена |
| Телефон: | 8 (495) 822-78-71 доб.257 |


