Описание объекта лот №: 965423
| Возможное использование: | Свободное назначение Авиа/ж-д кассы Аптеки Банки Бытовые услуги Ломбарды Магазины Медцентры Нотариусы/турфирмы Салоны красоты Фотостудии Шоурумы |
| Операция: | Продажа |
| Площадь: | 574.5 кв. м |
| Этаж: | 1 |
| Местоположение | |
| Город: | Дзержинский, Котельники |
| Улица: | Новорязанское шоссе |
| ИФНС | № 5027 |
| Стоимость и условия | |
| Цена: |
40 000 000 руб. Сообщить о снижении цены
|
| Срок окупаемости: | 12 лет |
| Обеспечительный платеж: | Без залога |
| Эксплуатационные расходы включены: | ✓ |
| Электроэнергия включена: | ✓ |
| Характеристики | |
| Тип здания: | Жилые дома |
| Отдельный вход: | ✓ |
| Этажность здания: | 5 |
| Круглосуточный доступ: | ✓ |
| Наличие паркинга: | ✓ |
| Кол-во парковочных мест: | 1 |
| Тип окон: | обычные |
| Электрическая мощность, кВт: | 15 |
| Описание | |
|
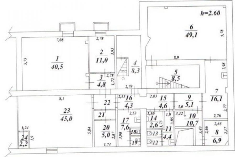
Лот №965423 Продам помещение свободного назначения общей площадью 574,5 кв.м, расположенное в жилом доме г.Дзержинский. Помещение расположено на 1-м этаже 329,7 кв.м, (высота потолка 2,95 м) и цокольном этаже 244,8 кв.м (высота потолка 2,5 м). Помещение имеет отдельный вход на 1-м этаже и окно под разгрузку в цоколе. Кабинетная планировка, выполнен евроремонт, выделенная электрическая мощность 15 кВт, все коммуникации. В цокольном этаже есть помещения с окнами, отдельное помещение с сейфовой дверью. Есть место для рекламной вывески.. Свободная парковка во дворе. Удобная транспортная доступность с выездом на Дзержинскую улицу и Дзержинское шоссе. В 5мин. пешком остановка общественного транспорта. Документы к сделке готовы.
Чтобы получить ПОДРОБНУЮ ПРЕЗЕНТАЦИЮ С ПЛАНИРОВКОЙ И ФОТОГРАФИЯМИ на этот объект, звоните. Высылаем в течение 15 минут по запросу! |
|
| Доп. услуги: | - возможна продажа в кредит |
| Контактная информация | |
| Лот №: | 965423 |
| Контактное лицо: | Федор Михайлович |
| Телефон: | 8 (495) 822-78-71 доб.176 |


