Описание объекта лот №: 964159
| Возможное использование: | Свободное назначение Аптеки Банки Бытовые услуги Магазины Медцентры Офисы Салоны красоты Шоурумы Новостройки |
| Операция: | Продажа |
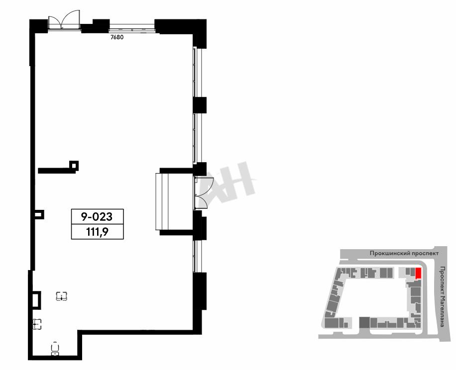
| Площадь: | 111.9 кв. м |
| Этаж: | 1 |
| Местоположение | |
| Город: | Коммунарка, Московский |
| Метро: | Прокшино, Филатов Луг, Ольховая |
| Улица: | Калужское шоссе |
| ИФНС | № 7751 |
| Стоимость и условия | |
| Цена: |
64 256 337 руб. Сообщить о снижении цены
|
| Срок окупаемости: | 9 лет |
| Делимся комиссией: | ✓ |
| Характеристики | |
| Тип здания: | Жилые дома |
| Этажность здания: | 19 |
| Срок сдачи: | 2028 г. (2 кв.) |
| Описание | |
|
Лот №964159 Выплачиваем вознаграждение! Представлено коммерческое помещение общей площадью 111,9 м², расположенное на одном этаже. Высота потолков составляет 4,61 метра, разрешенная мощность — 34,0 кВт. Помещение имеет два входа и систему вентиляции с шахтами 355, 200 и 100 мм. Отделка и витринное остекление отсутствуют. Помещение находится в строящемся жилом районе «Прокшино» в юго-западной части Москвы, в 500 метрах от одноименной станции метро. Район является частью масштабного кластера, где также будут построены торгово-офисный центр и спортивно-развлекательный комплекс. Инфраструктура включает детский сад, ФОК с бассейнами и супермаркет, а вывески хорошо просматриваются с трассы СБВ. Для приобретения доступны помещения различной площади от 25 м² до 2000 м² с высотой потолков от 4 метров. Предусмотрена свободная планировка, возможность объединения лотов и организация антресоли. Срок сдачи объекта запланирован на второй квартал 2028 года. Для покупателей действуют специальные финансовые условия: ипотечная программа со ставкой от 4,5% годовых, а также акция с возвратом ипотеки 1,01% при первоначальном взносе от 30%. Доступен интерактивный подбор помещений и опция выбора помещения с акцептом франшизы.
Чтобы получить ПОДРОБНУЮ ПРЕЗЕНТАЦИЮ С ПЛАНИРОВКОЙ И ФОТОГРАФИЯМИ на этот объект, звоните. Высылаем в течение 15 минут по запросу!
Уважаемые коллеги, мы работаем по этому объекту с посредниками и делимся комиссией в соответствии с нашей партнерской программой! |
|
| Доп. услуги: | - возможна продажа в кредит |
| Контактная информация | |
| Лот №: | 964159 |
| Контактное лицо: | НОВОСТРОЙКИ |
| Телефон: | 8 (495) 822-78-71 доб.211 |


