Описание объекта лот №: 964157
| Возможное использование: | Свободное назначение Аптеки Банки Бытовые услуги Магазины Медцентры Офисы Салоны красоты Шоурумы Новостройки |
| Операция: | Продажа |
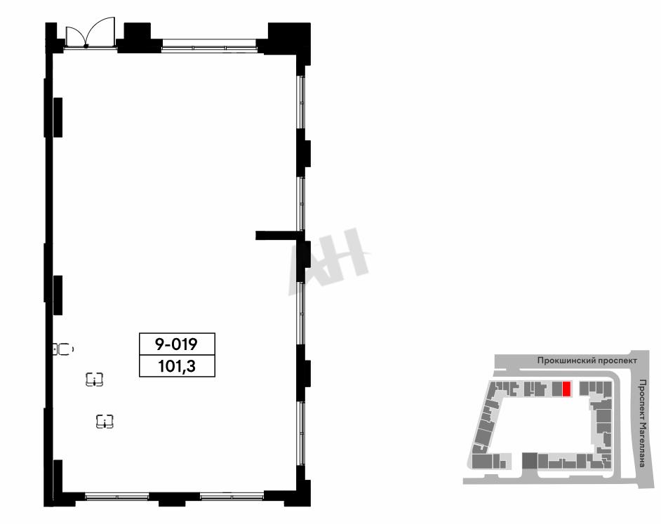
| Площадь: | 101.3 кв. м |
| Этаж: | 1 |
| Местоположение | |
| Город: | Коммунарка, Московский |
| Метро: | Прокшино, Филатов Луг, Ольховая |
| Улица: | Калужское шоссе |
| ИФНС | № 7751 |
| Стоимость и условия | |
| Цена: |
50 842 470 руб. Сообщить о снижении цены
|
| Срок окупаемости: | 9 лет |
| Делимся комиссией: | ✓ |
| Характеристики | |
| Тип здания: | Жилые дома |
| Этажность здания: | 14 |
| Срок сдачи: | 2028 г. (1 кв.) |
| Описание | |
|
Лот №964157 Выплачиваем вознаграждение! Предлагается к приобретению коммерческое помещение свободного назначения общей площадью 101,3 м². Помещение характеризуется высокими потолками 4,42 метра, разрешенной мощностью 20,5 кВт и системой вентиляции. Отделка в помещении отсутствует, предусмотрен один вход. Для вашего удобства действуют специальные ипотечные программы. А101 возвращает ипотеку 1,01% на коммерческие помещения с первоначальным взносом от 30%. Также доступна ипотека от 4,5% годовых. Объект расположен в жилом районе «Прокшино» в юго-западной части Москвы, в 500 метрах от одноименной станции метро. В составе масштабного кластера запланировано строительство крупного торгово-офисного центра и всесезонного спортивно-развлекательного комплекса. Инфраструктура района включает детский сад, ФОК с бассейнами и супермаркет. Вывески и витрины будущих объектов хорошо просматриваются со стороны трассы СБВ. Помещения в районе представлены в различных форматах — от 25 м² до 2000 м², с высотой потолков от 4 метров. Предусмотрена свободная планировка и возможность объединения лотов, что позволяет реализовать любой бизнес-проект. Для клиентов доступен интерактивный подбор помещений и опция выбора помещения с акцептом франшизы. Сдача объекта в эксплуатацию запланирована на первый квартал 2028 года.
Чтобы получить ПОДРОБНУЮ ПРЕЗЕНТАЦИЮ С ПЛАНИРОВКОЙ И ФОТОГРАФИЯМИ на этот объект, звоните. Высылаем в течение 15 минут по запросу!
Уважаемые коллеги, мы работаем по этому объекту с посредниками и делимся комиссией в соответствии с нашей партнерской программой! |
|
| Доп. услуги: | - возможна продажа в кредит |
| Контактная информация | |
| Лот №: | 964157 |
| Контактное лицо: | НОВОСТРОЙКИ |
| Телефон: | 8 (495) 822-78-71 доб.211 |


