Описание объекта лот №: 962125
| Возможное использование: | Офисы |
| Операция: | Аренда |
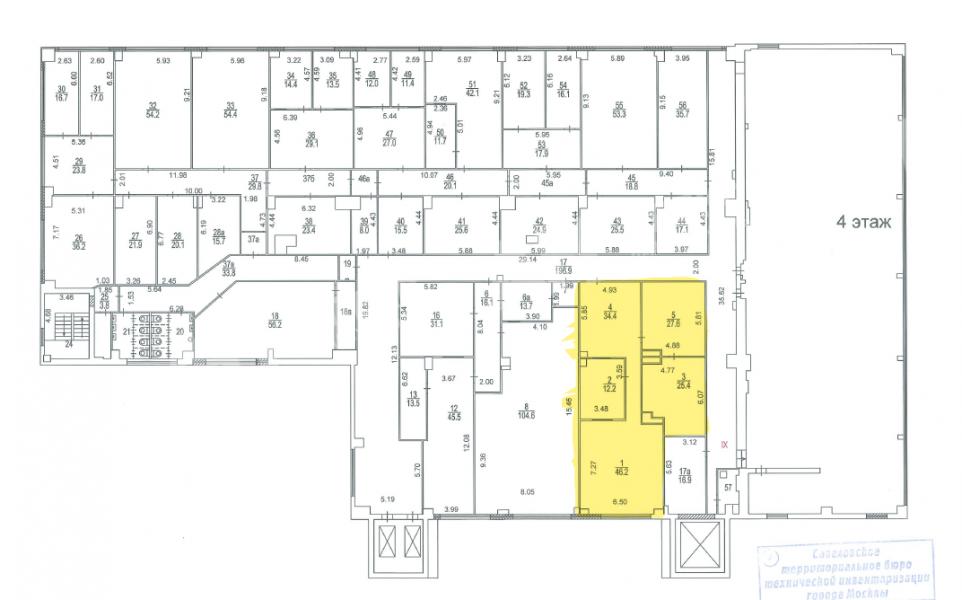
| Площадь: | 145.8 кв. м |
| Этаж: | 4 |
| Местоположение | |
| Округ: | СЗАО |
| Метро: | Дмитровская, Гражданская (МЦД), Петровский Парк |
| От метро: | 10 мин. пешком |
| Улица: | Хуторская 2-я ул |
| ИФНС | № 7713 |
| Стоимость и условия | |
| Цена: | 291 600 руб. в месяц 24 000 руб. за 1м2 в год Сообщить о снижении цены ![]() |
| Форма налогообложения собственника: | НДС |
| Обеспечительный платеж: | 1 месяц |
| Коммунальные услуги включены: | ✓ |
| Эксплуатационные расходы включены: | ✓ |
| Характеристики | |
| Тип здания: | Бизнес центры класса B |
| Этажность здания: | 8 |
| Наличие кондиционирования: | ✓ |
| Наличие лифта: | ✓ |
| Круглосуточный доступ: | ✓ |
| Наличие паркинга: | ✓ |
| Наличие общепита в здании: | ✓ |
| Описание | |
|
Лот №962125 Предлагается к рассмотрению офисное помещение общей площадью 145.8 м², расположенное на четвертом этаже здания. Офис обладает отдельным входом и удобной транспортной доступностью, находясь в 10 минутах ходьбы от станции метро «Дмитровская». Для комфортного доступа в здании имеется лифт. Помещение полностью готово к работе и оснащено современными инженерными системами. Без мебели. Установлены центральная система кондиционирования и приточно-вытяжная вентиляция. Безопасность обеспечивается круглосуточной системой контроля доступа и автоматической системой пожаротушения. Офис сдан с качественной отделкой. В помещении уже разведены слаботочные сети для телефонии и интернет-доступа. Все техническое оборудование соответствует действующим требованиям пожарной безопасности и санитарным нормам. Услуги по хранению почты и обеспечению интернет-связи предоставляются и оплачиваются дополнительно. Парковка наземная 6000 р./мес. Стоимость аренды: 24 000 руб/м2/год (291 600 руб. в месяц). В цену включено: коммунальные расходы, эксплуатационные расходы. В цену не включено: затраты на электричество, уборка.
Чтобы получить ПОДРОБНУЮ ПРЕЗЕНТАЦИЮ С ПЛАНИРОВКОЙ И ФОТОГРАФИЯМИ на этот объект, звоните. Высылаем в течение 15 минут по запросу! |
|
| Контактная информация | |
| Лот №: | 962125 |
| Контактное лицо: | Ринат |
| Телефон: | 8 (495) 822-78-71 доб.232 |


