Описание объекта лот №: 953004
| Возможное использование: | Свободное назначение Аптеки Банки Бытовые услуги Магазины Медцентры Офисы Салоны красоты Шоурумы Новостройки |
| Операция: | Продажа |
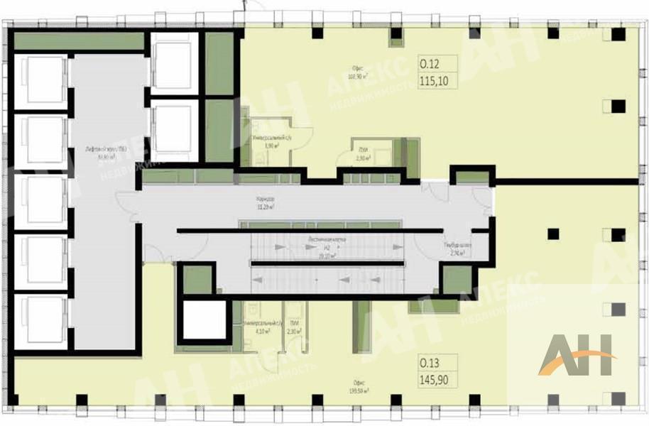
| Площадь: | 145.9 кв. м |
| Этаж: | 8 |
| Местоположение | |
| Округ: | САО |
| Метро: | Хорошево (МЦК), Полежаевская, Хорошевская |
| Улица: | 2-й Силикатный проезд |
| ИФНС | № 7734 |
| Стоимость и условия | |
| Цена: |
69 302 500 руб. Сообщить о снижении цены
|
| Характеристики | |
| Тип здания: | Жилые дома |
| Этажность здания: | 27 |
| Наличие лифта: | ✓ |
| Наличие паркинга: | ✓ |
| Электрическая мощность, кВт: | 29 |
| Срок сдачи: | 2027 г. (2 кв.) |
| Описание | |
|
Лот №953004 Продается коммерческое помещение площадью 145,90 кв. м на 8 этаже в комплексе апартаментов EMOTION (1 очередь, корпус 1). Объект расположен по адресу: 2 Силикатный проезд, дом 8. Здание является частью многофункционального комплекса, представляющего собой яркий новый акцент в районе «Большой Сити». Помещение характеризуется высотой потолков 3,00 метра. Общее количество этажей в корпусе — 27. Срок сдачи объекта в эксплуатацию запланирован на второй квартал 2027 года.
Чтобы получить ПОДРОБНУЮ ПРЕЗЕНТАЦИЮ С ПЛАНИРОВКОЙ И ФОТОГРАФИЯМИ на этот объект, звоните. Высылаем в течение 15 минут по запросу! |
|
| Доп. услуги: | - возможна продажа в кредит |
| Контактная информация | |
| Лот №: | 953004 |
| Контактное лицо: | НОВОСТРОЙКИ |
| Телефон: | 8 (495) 822-78-71 доб.211 |


