Описание объекта лот №: 944919
| Возможное использование: | Магазины Бизнес |
| Операция: | Продажа бизнеса |
| Площадь: | 78.2 кв. м |
| Этаж: | 1 |
| Местоположение | |
| Округ: | СВАО |
| Метро: | Свиблово, Бабушкинская, Ботанический сад |
| Улица: | Кольская ул |
| ИФНС | № 7716 |
| Стоимость и условия | |
| Цена: |
32 000 000 руб. Сообщить о снижении цены
|
| Срок окупаемости: | 11 лет |
| Характеристики | |
| Тип здания: | Жилые дома |
| Этажность здания: | 11 |
| Тип окон: | витринные |
| Электрическая мощность, кВт: | 16 |
| Описание | |
|
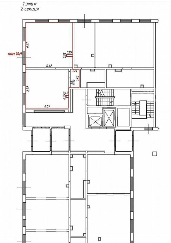
Лот №944919 Продается торговое помещение с действующим арендатором по адресу: улица Кольская, дом 8, корпус 2. Объект расположен в пешей доступности от метро Свиблово, время в пути составляет девять минут. Помещение находится на первом этаже полностью заселенного жилого комплекса бизнес-класса от застройщика ПИК. Общая площадь объекта составляет 78,2 квадратных метра. Помещение угловое, имеет открытую планировку и один вход. Высота потолков достигает 3,2 метра. Важной особенностью являются витринные окна, выходящие на две стороны, что обеспечивает excellent ную видимость и естественное освещение. Жилой квартал "Кольская 8" расположен в Бабушкинском районе. В помещении стабильно работает арендатор – ногтевой сервис "4hands/Пальчики", являющийся одной из самых быстроразвивающихся сетей салонов красоты по итогам 2024 года. Действует долгосрочный договор аренды сроком на десять лет. Месячная арендная плата установлена в размере 200 000 рублей на первый год и 220 000 рублей на второй год с безусловной индексацией 4%.
Чтобы получить ПОДРОБНУЮ ПРЕЗЕНТАЦИЮ С ПЛАНИРОВКОЙ И ФОТОГРАФИЯМИ на этот объект, звоните. Высылаем в течение 15 минут по запросу! |
|
| Доп. услуги: | - возможна продажа в кредит |
| Контактная информация | |
| Лот №: | 944919 |
| Контактное лицо: | Елена |
| Телефон: | 8 (495) 822-78-71 доб.257 |


