Описание объекта лот №: 929353
| Возможное использование: | Свободное назначение Аптеки Банки Бытовые услуги Магазины Медцентры Офисы Салоны красоты Шоурумы Новостройки |
| Операция: | Продажа |
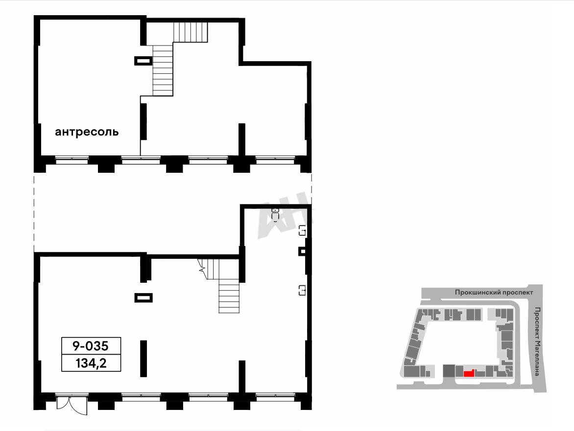
| Площадь: | 134.2 кв. м |
| Этаж: | 1 |
| Местоположение | |
| Город: | Коммунарка, Московский |
| Метро: | Прокшино, Филатов Луг, Ольховая |
| Улица: | Калужское шоссе |
| ИФНС | № 7751 |
| Стоимость и условия | |
| Цена: |
47 418 228 руб. Сообщить о снижении цены
|
| Срок окупаемости: | 9 лет |
| Делимся комиссией: | ✓ |
| Характеристики | |
| Тип здания: | Жилые дома |
| Этажность здания: | 16 |
| Срок сдачи: | 2028 г. (2 кв.) |
| Описание | |
|
Лот №929353 Выплачиваем вознаграждение! Представлено коммерческое помещение общей площадью 134,2 м², расположенное на одном этаже. Высота потолков составляет 4,07 метра, разрешенная мощность — 27,0 кВт. Помещение имеет одно входную группу, система вентиляции включает каналы Ш160 и Ш100. Отделка и витринное остекление в помещении отсутствуют. Для приобретения доступны специальные финансовые условия. Действует ипотечная программа со ставкой от 4,5% годовых. Также компания А101 предлагает уникальное предложение с возвратом ипотеки 1,01% при первоначальном взносе от 30%. Помещение находится в развивающемся жилом районе «Прокшино» в юго-западной части Москвы, в 7 км от МКАД. Район отличается выгодным расположением в 500 метрах от станции метро «Прокшино», с удобными выездами на Калужское и Киевское шоссе, а также на СБВ. Инфраструктура района включает строящийся крупный торгово-офисный центр и всесезонный спортивно-развлекательный комплекс. Проектом запланированы детский сад, ФОК с бассейнами и супермаркет. Витрины объектов, выходящие на оживленную трассу СБВ, обладают высоким потенциалом для привлечения клиентов. Помещения в кластере предлагаются в различных форматах — от 25 м² до 2000 м², с высотой потолков от 4 до 6,35 метров. Предусмотрена свободная планировка, возможность объединения лотов и организация антресолей. Для выбора оптимального решения доступен интерактивный подбор помещений и опция приобретения с акцептом франшизы. Сдача объекта запланирована на второй квартал 2028 года.
Чтобы получить ПОДРОБНУЮ ПРЕЗЕНТАЦИЮ С ПЛАНИРОВКОЙ И ФОТОГРАФИЯМИ на этот объект, звоните. Высылаем в течение 15 минут по запросу!
Уважаемые коллеги, мы работаем по этому объекту с посредниками и делимся комиссией в соответствии с нашей партнерской программой! |
|
| Доп. услуги: | - возможна продажа в кредит |
| Контактная информация | |
| Лот №: | 929353 |
| Контактное лицо: | НОВОСТРОЙКИ |
| Телефон: | 8 (495) 822-78-71 доб.211 |


