Описание объекта лот №: 1085170
| Возможное использование: | Свободное назначение Новостройки |
| Операция: | Продажа |
| Площадь: | 4321 кв. м |
| Этаж: | 1 - 3-й |
| Местоположение | |
| Округ: | САО |
| Метро: | Бескудниково (МЦД), Марк (МЦД), Лианозово (МЦД) |
| От метро: | 5 мин. транспортом |
| Улица: | Илимская ул |
| ИФНС | № 7715 |
| Стоимость и условия | |
| Цена: |
200 000 000 руб. Сообщить о снижении цены
|
| Форма налогообложения собственника: | НДС |
| Срок окупаемости: | 10 лет |
| Характеристики | |
| Тип здания: | Административные здания |
| Отдельный вход: | ✓ |
| Этажность здания: | 3 |
| Наличие лифта: | ✓ |
| Наличие пропускной системы: | ✓ |
| Наличие паркинга: | ✓ |
| Тип окон: | обычные |
| Электрическая мощность, кВт: | 100 |
| Срок сдачи: | 2024 г. (4 кв.) |
| Описание | |
|
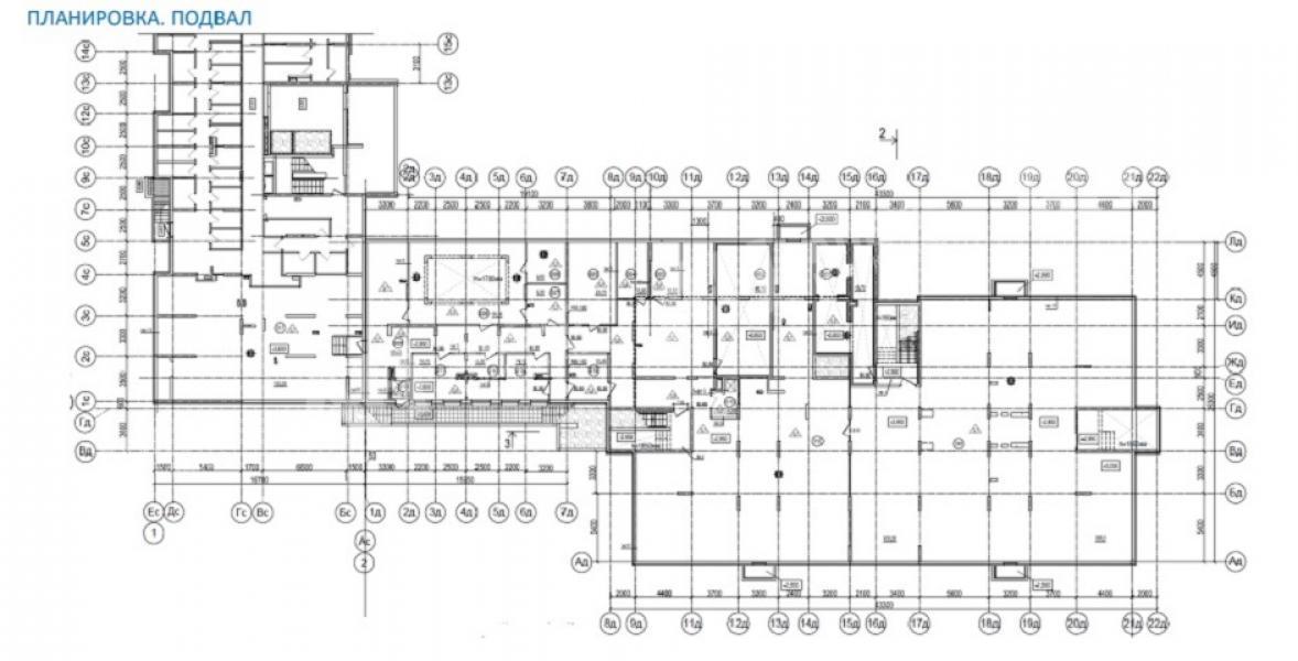
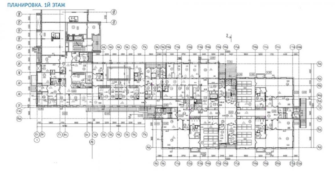
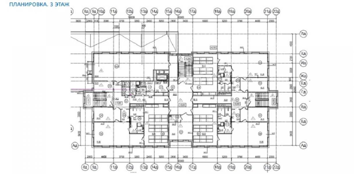
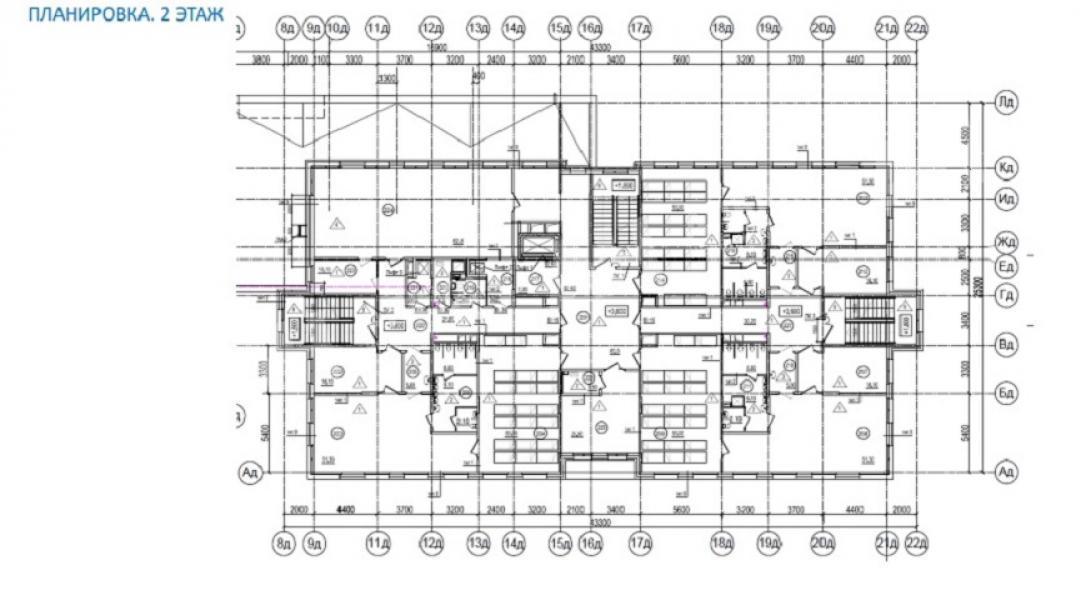
Лот №1085170 В продаже здание под детский сад/школу. Располагается в заселенном жилом комплексе комфорт-класса. Комплекс расположен в 5 минутах езды на транспорте от станции метро Алтуфьево. Рядом находятся парковочная зона для жителей и гостей комплекса. Технические характеристики: Общая площадь: 4321 м2 Подвал: 1224 м2 1 этаж: 1212.3 м2 2 этаж: 942.35 м2 3 этаж: 942.35 м2 Детский сад рассчитан на 175 мест Высота потолка: 3. 25 м Все коммуникации центральные Огороженная территория Продажа с НДС. Все корпуса введены в эксплуатацию и заселены.
Чтобы получить ПОДРОБНУЮ ПРЕЗЕНТАЦИЮ С ПЛАНИРОВКОЙ И ФОТОГРАФИЯМИ на этот объект, звоните. Высылаем в течение 15 минут по запросу! |
|
| Доп. услуги: | - возможна продажа в кредит |
| Контактная информация | |
| Лот №: | 1085170 |
| Контактное лицо: | Наталья |
| Телефон: | 8 (495) 822-78-71 доб.202 |


