Описание объекта лот №: 1080774
| Возможное использование: | Свободное назначение |
| Операция: | Продажа |
| Площадь: | 219.8 кв. м |
| Этаж: | цоколь |
| Местоположение | |
| Округ: | ЮЗАО |
| Метро: | Бульвар Рокоссовского, Вавиловская, Новаторская |
| От метро: | 20 мин. пешком |
| Улица: | Марии Ульяновой ул |
| ИФНС | № 7736 |
| Стоимость и условия | |
| Цена: |
20 000 000 руб. Сообщить о снижении цены
|
| Срок окупаемости: | 10 лет |
| Обеспечительный платеж: | Без залога |
| Характеристики | |
| Тип здания: | Жилые дома |
| Отдельный вход: | ✓ |
| Этажность здания: | 8 |
| Круглосуточный доступ: | ✓ |
| Электрическая мощность, кВт: | 15 |
| Описание | |
|
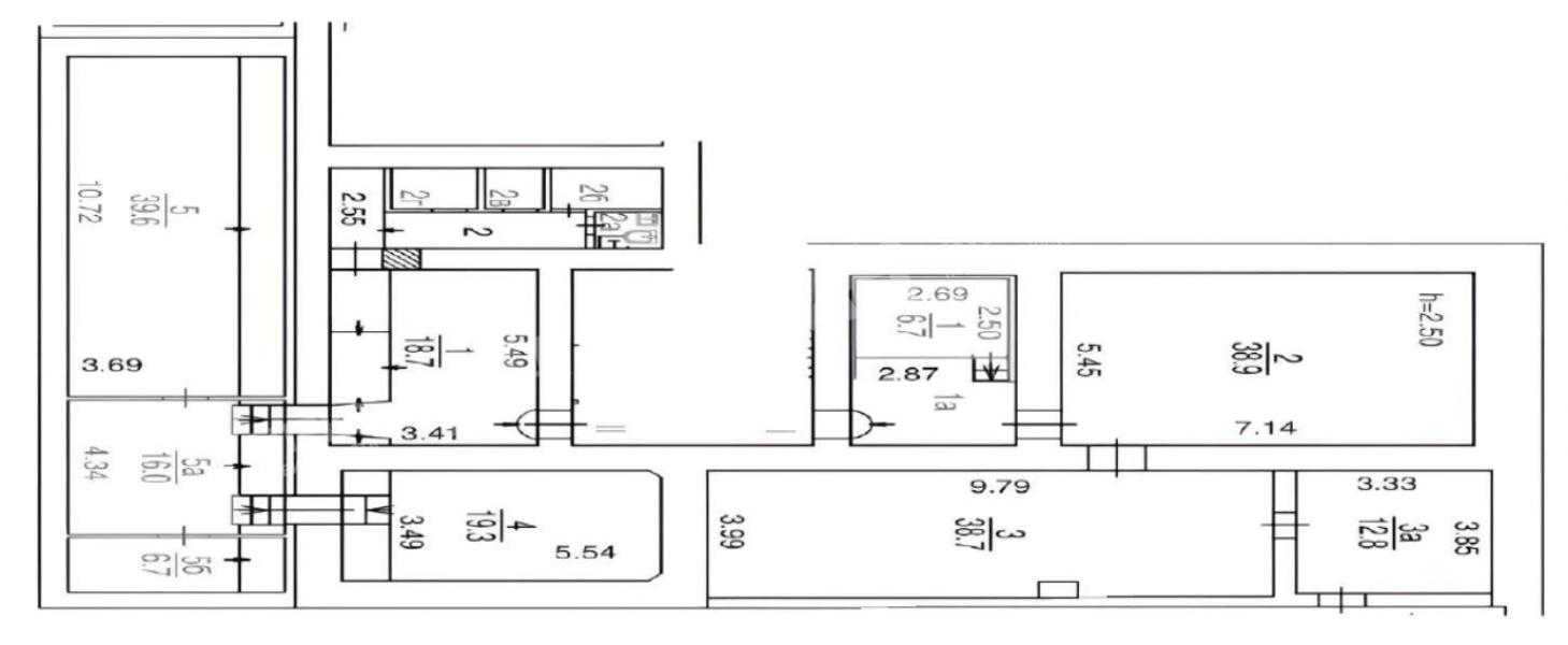
Лот №1080774 Продаётся коммерческое помещение 219,8 м² с отдельным входом на цокольном этаже. Расположено в 15 минутах от метро Вавиловская, в 2 минутах от остановки общественного транспорта. Район с плотной жилой застройкой — почти 30 000 человек проживают в радиусе 10 минут ходьбы. Рядом школа и два детских сада, что формирует устойчивый пешеходный трафик. Помещение свободно, готово к заселению арендатора или использованию под собственный бизнес. Планировка позволяет организовать торговое пространство, пункт выдачи, салон услуг, медицинский или детский центр. Высота потолков — 2,5 м, электрическая мощность — 15 кВт. При текущих рыночных ставках аренды для данной локации и метража потенциальный ежемесячный доход может составить от 200 000 до 250 000 ₽, что даёт окупаемость в диапазоне 7–8 лет. Высокая концентрация жителей и социальной инфраструктуры обеспечивает стабильный спрос со стороны сетевых арендаторов. Привлекательная цена за квадратный метр — около 91 000 ₽/м². Подойдёт как инвестору для сдачи в аренду, так и предпринимателю для размещения собственного бизнеса в обжитом районе юго-запада Москвы.
Чтобы получить ПОДРОБНУЮ ПРЕЗЕНТАЦИЮ С ПЛАНИРОВКОЙ И ФОТОГРАФИЯМИ на этот объект, звоните. Высылаем в течение 15 минут по запросу! |
|
| Доп. услуги: | - возможна продажа в кредит |
| Контактная информация | |
| Лот №: | 1080774 |
| Контактное лицо: | Апекс |
| Телефон: | 8 (495) 822-78-71 доб.333 |


