Описание объекта лот №: 1030806
| Возможное использование: | Свободное назначение Авиа/ж-д кассы Бытовые услуги Магазины Медцентры Нотариусы/турфирмы Офисы Фитнес Ппа Фотостудии Шоурумы |
| Операция: | ППА |
| Площадь: | 140.9 кв. м |
| Этаж: | 1 |
| Местоположение | |
| Округ: | ЮАО |
| Метро: | Чертановская, Южная, Севастопольская |
| От метро: | 15 мин. пешком |
| Улица: | Сумской проезд |
| ИФНС | № 7726 |
| Стоимость и условия | |
| Цена: |
6 000 000 руб. Сообщить о снижении цены
|
| Обеспечительный платеж: | Без залога |
| Характеристики | |
| Тип здания: | Жилые дома |
| Отдельный вход: | ✓ |
| Этажность здания: | 17 |
| Описание | |
|
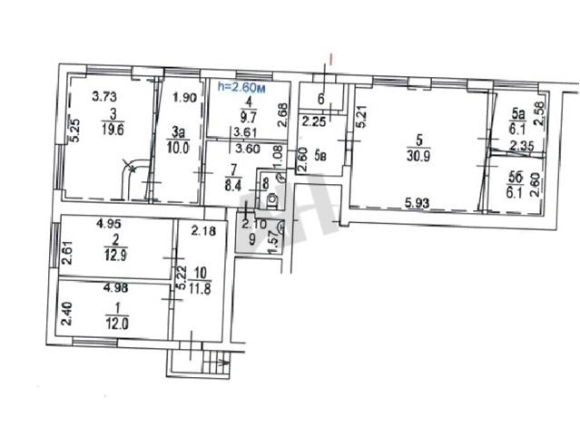
Лот №1030806 Продаются права аренды (ППА) с правом выкупа на нежилое помещение общей площадью 140,9 кв.м. Объект расположен в 12 минутах ходьбы от станции метро Чертановская, на первом этаже 12-этажного жилого дома 1988 года постройки. Помещение обладает кабинетной планировкой, качественной отделкой и двумя отдельными входами. Высота потолков составляет 2,6 метра. Оснащено приточно-вытяжной вентиляцией и пожарной сигнализацией. Цена выкупа объекта у Департамента имущества города Москвы, установленная решением суда, составляет 21 818 000 рублей. При выкупе предоставляется рассрочка платежа сроком на 7 лет с ежегодной индексацией 5,3%. Сделка осуществляется через процедуру переуступки прав выкупа данного объекта у ДИГМ.
Чтобы получить ПОДРОБНУЮ ПРЕЗЕНТАЦИЮ С ПЛАНИРОВКОЙ И ФОТОГРАФИЯМИ на этот объект, звоните. Высылаем в течение 15 минут по запросу! |
|
| Контактная информация | |
| Лот №: | 1030806 |
| Контактное лицо: | Татьяна Николаевна |
| Телефон: | 8 (495) 822-78-71 доб.255 |


