Описание объекта лот №: 1030802
| Возможное использование: | Свободное назначение Аптеки Банки Бытовые услуги Кафе/рестораны Магазины Медцентры Нотариусы/турфирмы Офисы Салоны красоты Фитнес Фотостудии Шоурумы |
| Операция: | Продажа |
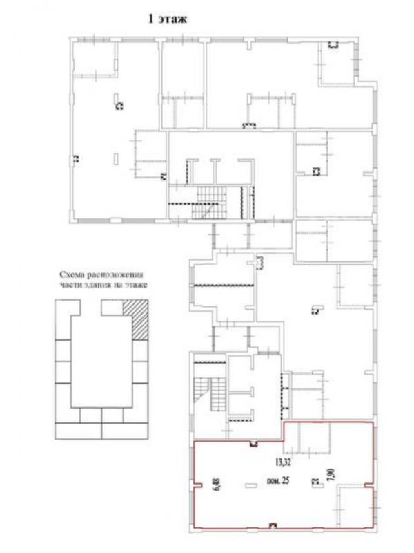
| Площадь: | 94.5 кв. м |
| Этаж: | 1 |
| Местоположение | |
| Город: | Коммунарка |
| Метро: | Потапово |
| Улица: | шоссе |
| Стоимость и условия | |
| Цена: |
26 000 000 руб. Сообщить о снижении цены
|
| Форма налогообложения собственника: | НДС |
| Срок окупаемости: | 10 лет |
| Обеспечительный платеж: | Без залога |
| Характеристики | |
| Тип здания: | Жилые дома |
| Отдельный вход: | ✓ |
| Этажность здания: | 14 |
| Круглосуточный доступ: | ✓ |
| Наличие паркинга: | ✓ |
| Тип окон: | витринные |
| Электрическая мощность, кВт: | 15 |
| Описание | |
|
Лот №1030802 Продаётся помещение свободного назначения площадью 94.5 м2 в жилом комплексе "Скандинавия" класса комфорт+, состоящего из 99 корпусов и 20 037 квартир, с отдельным входом с улицы напротив главного входа в школу № 338. В помещении огромные витринные окна в пол, открытая планировка, высота потолков 5.6 м, позволяющая сделать антресоль и увеличить полезную площадь помещения, эл. мощность 15 кВт с возможностью увеличения. Отлично подойдёт под магазин, шоурум, аптеку, отделение банка, офис, кафе, образовательную или творческую деятельность для детей и взрослых, салон красоты, фитнес-студию, медцентр, пункт выдачи заказов, услуги населению и другие виды коммерческого использования.
Чтобы получить ПОДРОБНУЮ ПРЕЗЕНТАЦИЮ С ПЛАНИРОВКОЙ И ФОТОГРАФИЯМИ на этот объект, звоните. Высылаем в течение 15 минут по запросу!
Уважаемые коллеги, к сожалению мы не работаем по этому объекту с посредниками, но у нас есть партнерская программа по другим объектам! |
|
| Доп. услуги: | - возможна продажа в кредит |
| Youtube видео | |
| Контактная информация | |
| Лот №: | 1030802 |
| Контактное лицо: | Сергей Федорович |
| Телефон: | 8 (495) 822-78-71 доб.218 |


