Описание объекта лот №: 1029002
| Возможное использование: | Свободное назначение Авиа/ж-д кассы Бытовые услуги Нотариусы/турфирмы Офисы Фитнес Фотостудии Шоурумы |
| Операция: | Продажа |
| Площадь: | 72.6 кв. м |
| Этаж: | 1 |
| Местоположение | |
| Город: | Реутов, Салтыковка |
| Метро: | Новокосино , Новогиреево, Улица Дмитриевского |
| Улица: | Носовихинское шоссе |
| ИФНС | № 7720 |
| Стоимость и условия | |
| Цена: |
24 000 000 руб. Сообщить о снижении цены
|
| Срок окупаемости: | 10 лет |
| Обеспечительный платеж: | Без залога |
| Характеристики | |
| Тип здания: | Жилые дома |
| Отдельный вход: | ✓ |
| Этажность здания: | 14 |
| Описание | |
|
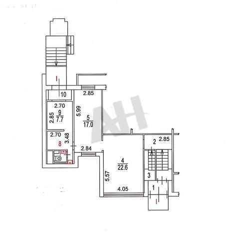
Лот №1029002 Продается нежилое помещение площадью 72,6 кв.м на первом этаже жилого дома 1987 года постройки. Объект расположен на первой линии домов в жилом массиве в трех минутах ходьбы от станции метро «Новокосино». Помещение имеет два отдельных входа: с улицы и со стороны двора. Помещение сдано в аренду компании Wildberries. Текущий арендный доход составляет 200 000 рублей в месяц. Объект выкупается у Департамента города Москвы с августа 2024 года с предоставленной рассрочкой платежа на 7 лет, до августа 2031 года. Остаток обязательств перед городом составляет 8 млн рублей с ежемесячным платежом 120 000 рублей. Коммунальные платежи составляют примерно 10 000 рублей в месяц. Для покупателя существует возможность продолжить рассрочку платежа перед городом до августа 2031 года. В рамках данной схемы продается 100% долей ООО, которому принадлежит помещение. Цена продажи ООО составляет 16 млн рублей плюс остаток обязательств перед городом в размере 8 млн рублей.
Чтобы получить ПОДРОБНУЮ ПРЕЗЕНТАЦИЮ С ПЛАНИРОВКОЙ И ФОТОГРАФИЯМИ на этот объект, звоните. Высылаем в течение 15 минут по запросу! |
|
| Доп. услуги: | - возможна продажа в кредит |
| Контактная информация | |
| Лот №: | 1029002 |
| Контактное лицо: | Татьяна Николаевна |
| Телефон: | 8 (495) 822-78-71 доб.255 |


