Описание объекта лот №: 1010771
| Возможное использование: | Свободное назначение Магазины Офисы Бизнес Шоурумы |
| Операция: | Продажа бизнеса |
| Площадь: | 1190.1 кв. м |
| Этаж: | 1 |
| Местоположение | |
| Округ: | ЮАО |
| Метро: | Аннино, Битца (МЦД), Красный Строитель (МЦД) |
| От метро: | 7 мин. пешком |
| Улица: | Варшавское ш |
| ИФНС | № 7724 |
| Стоимость и условия | |
| Цена: |
164 900 000 руб. Сообщить о снижении цены
|
| Срок окупаемости: | 9 лет |
| Обеспечительный платеж: | Без залога |
| Характеристики | |
| Тип здания: | Жилые дома |
| Отдельный вход: | ✓ |
| Этажность здания: | 12 |
| Наличие кондиционирования: | ✓ |
| Круглосуточный доступ: | ✓ |
| Наличие паркинга: | ✓ |
| Тип окон: | маленькие |
| Электрическая мощность, кВт: | 150 |
| Описание | |
|
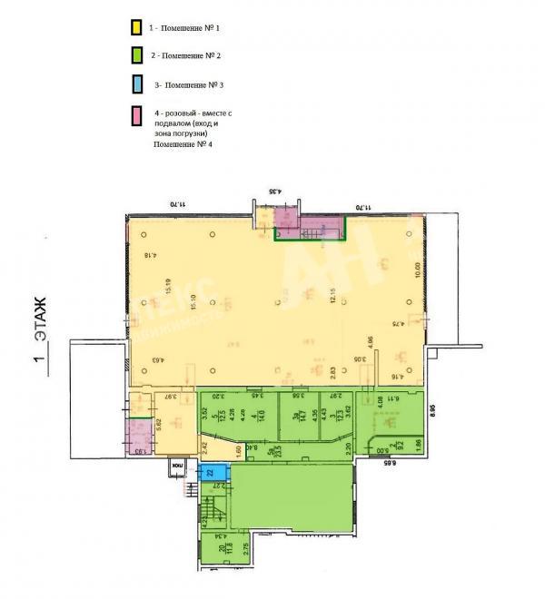
Лот №1010771 Продаётся готовый арендный бизнес, помещение свободного назначения общей площадью 1190.1 м2 (1-й этаж - 600 м2, подвал - 590 м2) в 7 мин. пешком от станции метро "Аннино". Арендаторы: "Планета инструмента", магазин автозапчастей "Rossko" и "Потолок Хаб", совокупный МАП - 1 494 980 руб. Объект расположен на первой линии, в непосредственной близости от бизнес-центра "Аннино Плаза" и плотного жилого массива с населением около 4500 человек в радиусе 5 минут пешей доступности. Смешанная планировка (залы и комнаты), отдельные входы с улицы и с торца, зона разгрузки с дебаркадером, потолки от 3 м, эл. мощность 150 кВт, центральные коммуникации.
Чтобы получить ПОДРОБНУЮ ПРЕЗЕНТАЦИЮ С ПЛАНИРОВКОЙ И ФОТОГРАФИЯМИ на этот объект, звоните. Высылаем в течение 15 минут по запросу! |
|
| Доп. услуги: | - возможна продажа в кредит |
| Контактная информация | |
| Лот №: | 1010771 |
| Контактное лицо: | Сергей Федорович |
| Телефон: | 8 (495) 822-78-71 доб.218 |


