Описание объекта лот №: 1010350
| Возможное использование: | Офисы |
| Операция: | Аренда |
| Тип аренды: | Прямая аренда |
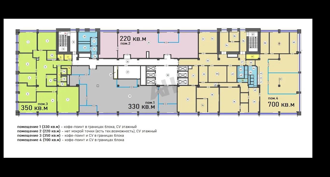
| Площадь: | 350 кв. м |
| Этаж: | 6 |
| Местоположение | |
| Округ: | САО |
| Метро: | Дмитровская, Бутырская, Савеловская |
| От метро: | 5 мин. пешком |
| Улица: | Новодмитровская ул |
| ИФНС | № 7715 |
| Стоимость и условия | |
| Цена: | 1 604 167 руб. в месяц 55 000 руб. за 1м2 в год Сообщить о снижении цены ![]() |
| Форма налогообложения собственника: | НДС |
| Обеспечительный платеж: | 2 месяца |
| Эксплуатационные расходы включены: | ✓ |
| Характеристики | |
| Тип здания: | Бизнес центры класса B |
| Этажность здания: | 9 |
| Наличие кондиционирования: | ✓ |
| Наличие лифта: | ✓ |
| Наличие пропускной системы: | ✓ |
| Наличие общепита в здании: | ✓ |
| Тип окон: | обычные |
| Описание | |
|
Лот №1010350 В бизнес-центре класса «Б+» «Дмитровский» сдается VIP офис, кабинетная планировка. Общая площадь 350 квадратных метров на шестом этаже. Здание оснащено шестью лифтами и современными инженерными коммуникациями. Для арендаторов и сотрудников доступен двухуровневый подземный паркинг, а также наземные парковочные места. Стоимость аренды составляет 25 000 рублей в месяц за один машино-место. Инфраструктура бизнес-центра включает корпоративную столовую для сотрудников, кафе, магазины и банкоматы. Расположение обеспечивает шаговую доступность от станции метро «Дмитровская». Стоимость аренды: 55 000 руб/м2/год (1 604 167 руб. в месяц). В цену включено: эксплуатационные расходы. В цену не включено: затраты на электричество, коммунальные расходы, уборка.
Чтобы получить ПОДРОБНУЮ ПРЕЗЕНТАЦИЮ С ПЛАНИРОВКОЙ И ФОТОГРАФИЯМИ на этот объект, звоните. Высылаем в течение 15 минут по запросу! |
|
| Контактная информация | |
| Лот №: | 1010350 |
| Контактное лицо: | Дмитрий Викторович |
| Телефон: | 8 (495) 822-78-71 доб.220 |


