Описание объекта лот №: 1009727
| Возможное использование: | Свободное назначение Авиа/ж-д кассы Аптеки Бытовые услуги Ломбарды Кафе/рестораны Магазины Медцентры Нотариусы/турфирмы Офисы Павильоны Салоны красоты Сауны Столовые Фитнес Фотостудии Шоурумы |
| Операция: | Продажа |
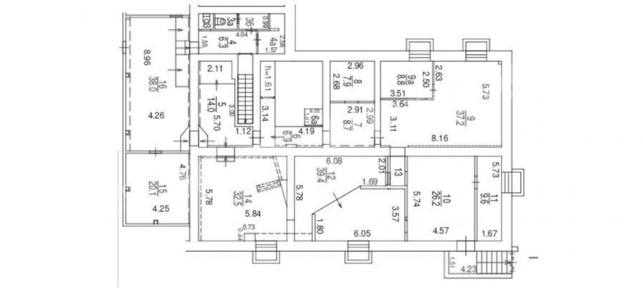
| Площадь: | 265.2 кв. м |
| Этаж: | цоколь |
| Местоположение | |
| Округ: | ЮЗАО |
| Метро: | Новаторская, Вавиловская, Проспект Вернадского |
| От метро: | 16 мин. пешком |
| Улица: | Марии Ульяновой ул |
| ИФНС | № 7736 |
| Стоимость и условия | |
| Цена: |
33 900 000 руб. Сообщить о снижении цены
|
| Срок окупаемости: | 8 лет |
| Обеспечительный платеж: | Без залога |
| Характеристики | |
| Тип здания: | Жилые дома |
| Отдельный вход: | ✓ |
| Этажность здания: | 9 |
| Круглосуточный доступ: | ✓ |
| Электрическая мощность, кВт: | 15 |
| Описание | |
|
Лот №1009727 Продаётся помещение свободного назначения 265,2 м² — Ленинский пр-т, д. 88, корп. 2. Помещение на цокольном этаже с отдельным входом. Подойдёт под магазин, услуги, офис, склад/шоурум, спорт/студию, мед. или образовательный формат (при согласовании). Параметры: Площадь — 265,2 м² Потолки — 2,6 м Электричество — 15 кВт Отдельный вход Локация и трафик: 10 минут до станции «Новаторская» 2 минуты до остановки общественного транспорта В 10 минутах пешком проживает 35 266 человек Рядом 1 школа и 2 детских сада
Чтобы получить ПОДРОБНУЮ ПРЕЗЕНТАЦИЮ С ПЛАНИРОВКОЙ И ФОТОГРАФИЯМИ на этот объект, звоните. Высылаем в течение 15 минут по запросу! |
|
| Доп. услуги: | - возможна продажа в кредит |
| Контактная информация | |
| Лот №: | 1009727 |
| Контактное лицо: | Апекс |
| Телефон: | 8 (495) 822-78-71 доб.333 |


