Описание объекта лот №: 991710
| Возможное использование: | Склады Склады с офисом Производство Теплые склады |
| Операция: | Аренда |
| Тип аренды: | Прямая аренда |
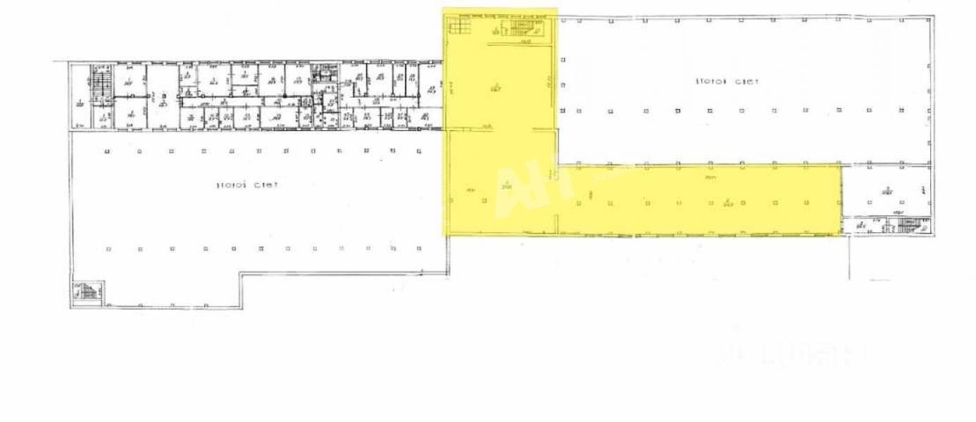
| Площадь: | 1386 кв. м |
| Этаж: | 1 - 2-й |
| Местоположение | |
| Округ: | ВАО |
| Метро: | Шоссе Энтузиастов, Соколиная гора (МЦК), Андроновка (МЦК) |
| От метро: | 2 мин. пешком |
| Улица: | Энтузиастов ш |
| ИФНС | № 7720 |
| Стоимость и условия | |
| Цена: | 1 732 500 руб. в месяц + НДС 15 000 руб. за 1м2 в год + НДС Сообщить о снижении цены ![]() |
| Форма налогообложения собственника: | НДС |
| Обеспечительный платеж: | 1 месяц |
| Эксплуатационные расходы включены: | ✓ |
| Характеристики | |
| Тип здания: | Складские комплексы |
| Отдельный вход: | ✓ |
| Этажность здания: | 2 |
| Наличие лифта: | ✓ |
| Возможность подъезда фуры: | ✓ |
| Наличие пропускной системы: | ✓ |
| Круглосуточный доступ: | ✓ |
| Наличие паркинга: | ✓ |
| Кол-во парковочных мест: | 300 |
| Тип окон: | обычные |
| Электрическая мощность, кВт: | 50 |
| Описание | |
|
Лот №991710 Аренда помещения 1386 м2 в здании вблизи м.Шоссе Энтузиастов (2 мин пешком). Уникальная локация. Вблизи ТТК. Отдельный вход с 1го этажа и подъезд для фур. Парковка. Зальная планировка. Все коммуникации. Отопление. Вода и с/у. Потолок 5м. Есть подъемник на 2т. Ровный бeтoнный пол с возможностью высокой нагрузки. от 50 кВт. Шаг колонн - 6м. Въездные ворота - 3х3. Помещение подходит для широкого спектра применений, включая такие профили: Склад, Фулфилмент, Склад для маркетплейсов, Хранение, Переупаковка, Комплектация, Фасовка, Производство, Логистический терминал, Распределительный центр, Склад для грузов, Кросс-докинг, Сборка изделий, комплектующих, Дооснащение продукции, Монтаж, демонтаж оборудования, Тестирование и проверка работоспособности техники, Ремонт и сервисное обслуживание на складе, Перемаркировка и ретейлинг упаковки и другие. Стоимость аренды: 15 000 руб/м2/год (1 732 500 руб. в месяц), НДС оплачивается дополнительно. В цену включено: эксплуатационные расходы. В цену не включено: затраты на электричество, коммунальные расходы, уборка.
Чтобы получить ПОДРОБНУЮ ПРЕЗЕНТАЦИЮ С ПЛАНИРОВКОЙ И ФОТОГРАФИЯМИ на этот объект, звоните. Высылаем в течение 15 минут по запросу! |
|
| Контактная информация | |
| Лот №: | 991710 |
| Контактное лицо: | Алексей Владимирович |
| Телефон: | 8 (495) 822-78-71 доб.217 |


