Описание объекта лот №: 985682
| Возможное использование: | Свободное назначение Бизнес |
| Операция: | Продажа бизнеса |
| Площадь: | 90.7 кв. м |
| Этаж: | 1 |
| Местоположение | |
| Округ: | ЦАО |
| Метро: | Баррикадная, Улица 1905 года, Маяковская |
| От метро: | 5 мин. пешком |
| Улица: | Большая Грузинская ул |
| ИФНС | № 7703 |
| Стоимость и условия | |
| Цена: |
48 000 000 руб. Сообщить о снижении цены
|
| Форма налогообложения собственника: | НДС |
| Срок окупаемости: | 10 лет |
| Обеспечительный платеж: | Без залога |
| Характеристики | |
| Тип здания: | Жилые дома |
| Отдельный вход: | ✓ |
| Этажность здания: | 8 |
| Круглосуточный доступ: | ✓ |
| Тип окон: | обычные |
| Описание | |
|
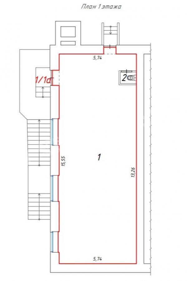
Лот №985682 Продаётся готовый арендный бизнес, пoмещeниe свободного нaзначeния площадью 90.7 м2 всего в 5 мин. пешком от станций метрo "Бappикaднaя" и "Kpacнoпpесненcкая". Арендатор - крупный франчайзи ПВЗ "Вайлдберриз" и "Озон", МАП - 400 000 руб. ЦАО, 1-й этаж 8-этажного жилого дома, интенсивный пешеходный трафик вдоль фасада дома, культурно-деловое окружение, соседнее помещение занимает якорный арендатор - сетевой супермаркет "Пятёрочка". В помещение отдельный вход с торца дома и второй со двора, 3 больших окна, открытая планировка, потолки 3.2 м.
Чтобы получить ПОДРОБНУЮ ПРЕЗЕНТАЦИЮ С ПЛАНИРОВКОЙ И ФОТОГРАФИЯМИ на этот объект, звоните. Высылаем в течение 15 минут по запросу! |
|
| Доп. услуги: | - возможна продажа в кредит |
| Контактная информация | |
| Лот №: | 985682 |
| Контактное лицо: | Сергей Федорович |
| Телефон: | 8 (495) 822-78-71 доб.218 |


