Описание объекта лот №: 984574
| Возможное использование: | Свободное назначение Аптеки Банки Бытовые услуги Магазины Медцентры Офисы Салоны красоты Шоурумы Новостройки |
| Операция: | Продажа |
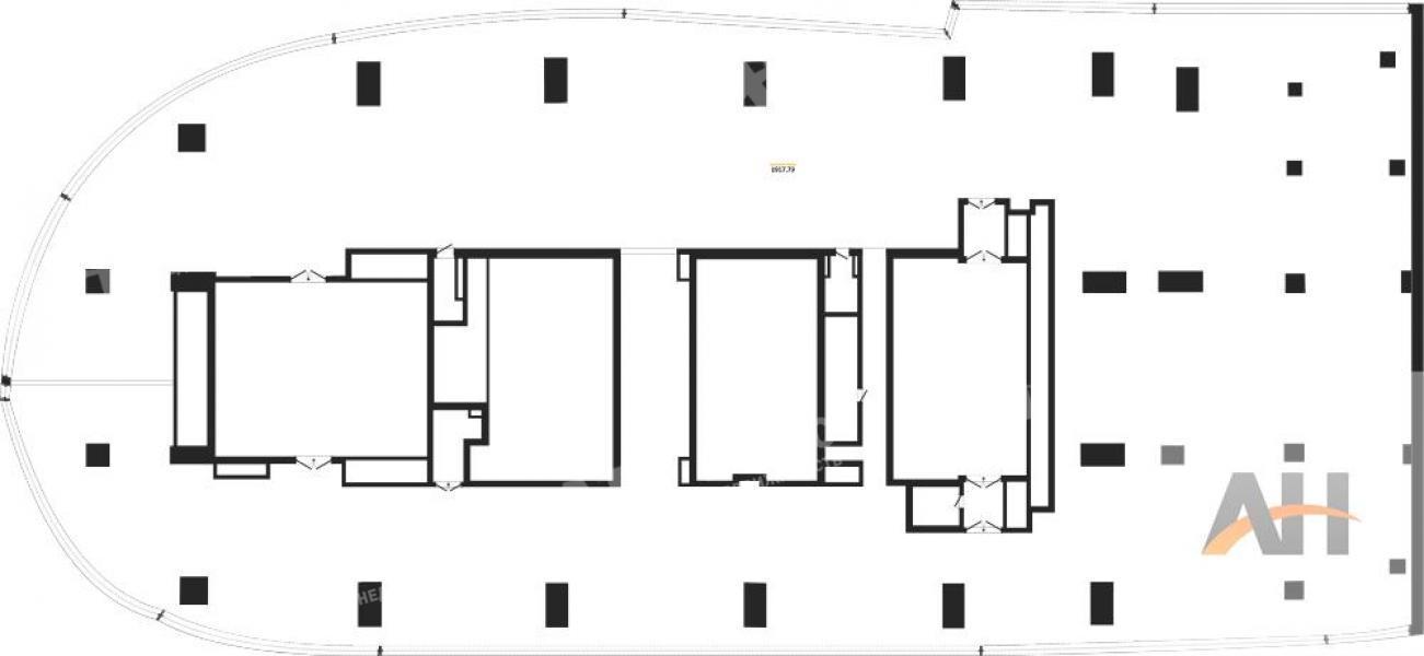
| Площадь: | 1917.8 кв. м |
| Этаж: | 5 |
| Местоположение | |
| Округ: | ЦАО |
| Метро: | Деловой центр, Выставочная, Международная |
| Улица: | 1-й Красногвардейский проезд |
| ИФНС | № 7703 |
| Стоимость и условия | |
| Цена: |
1 620 532 550 руб. Сообщить о снижении цены
|
| Характеристики | |
| Тип здания: | Жилые дома |
| Этажность здания: | 90 |
| Наличие лифта: | ✓ |
| Наличие паркинга: | ✓ |
| Электрическая мощность, кВт: | 383 |
| Срок сдачи: | 2027 г. (3 кв.) |
| Описание | |
|
Лот №984574 Предлагается к продаже коммерческое помещение общей площадью 1917,79 кв. м., расположенное на 5 этаже в корпусе 1 комплекса ONE TOWER (первая очередь). Объект находится по адресу: 1 Красногвардейский проезд, дом 13. Здание является новостройкой с запланированной сдачей в эксплуатацию в третьем квартале 2027 года и насчитывает 90 этажей. Помещение имеет свободное функциональное назначение и может быть использовано для организации медицинского центра, салона красоты, парикмахерской, офиса, ресторана, бара, банка, предприятий бытового обслуживания, торговых площадей или магазина. Высота потолков составляет 3,90 метра, что создает дополнительные возможности для планировки и оформления внутреннего пространства.
Чтобы получить ПОДРОБНУЮ ПРЕЗЕНТАЦИЮ С ПЛАНИРОВКОЙ И ФОТОГРАФИЯМИ на этот объект, звоните. Высылаем в течение 15 минут по запросу! |
|
| Доп. услуги: | - возможна продажа в кредит |
| Контактная информация | |
| Лот №: | 984574 |
| Контактное лицо: | НОВОСТРОЙКИ |
| Телефон: | 8 (495) 822-78-71 доб.211 |


