Описание объекта лот №: 983068
| Возможное использование: | Свободное назначение Салоны красоты Сауны Столовые Фитнес Фотостудии Шоурумы |
| Операция: | Продажа |
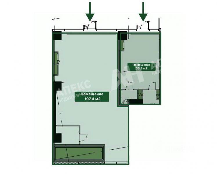
| Площадь: | 107.4 кв. м |
| Этаж: | 1 |
| Местоположение | |
| Округ: | СВАО |
| Метро: | Ростокино (МЦК), Свиблово, Ботанический сад |
| Улица: | Мира пр-кт |
| ИФНС | № 7716 |
| Стоимость и условия | |
| Цена: |
80 550 000 руб. Сообщить о снижении цены
|
| Срок окупаемости: | 9 лет |
| Обеспечительный платеж: | Без залога |
| Характеристики | |
| Тип здания: | Жилые дома |
| Этажность здания: | 35 |
| Тип окон: | витринные |
| Электрическая мощность, кВт: | 25 |
| Описание | |
|
Лот №983068 В продаже представлено коммерческое помещение свободного назначения общей площадью 107,4 м², расположенное на первом этаже в здании первой линии. Помещение углового формата оборудовано панорамными витринами и характеризуется высотой потолков 5 метров. Объект предлагает свободную планировку, что позволяет произвести функциональное зонирование на основную и подсобную зоны. Уникальное торговое пространство с панорамным остеклением и прямым входом с улицы находится в жилом комплексе бизнес-класса, рассчитанном на 1900 апартаментов. Локация в динамично развивающемся районе Ростокино обладает высоким потенциалом благодаря близости к станции МЦК «Ростокино», торговому центру «Европолис» и оживленной магистрали проспекта Мира. Данные характеристики делают помещение идеальным для размещения сетевого или якорного бизнеса. Инвестиционная привлекательность объекта подтверждается потенциальным арендным доходом в диапазоне 750 000–820 000 рублей в месяц. Расчетный срок окупаемости инвестиций составляет 8,5–9 лет, а прогнозируемая доходность — 11–12,5% годовых. Возможна прямая продажа объекта. Рассматривается вариант приобретения в ипотеку, а также предоставление рассрочки платежа по индивидуальным условиям. Гарантируется быстрый выход на сделку.
Чтобы получить ПОДРОБНУЮ ПРЕЗЕНТАЦИЮ С ПЛАНИРОВКОЙ И ФОТОГРАФИЯМИ на этот объект, звоните. Высылаем в течение 15 минут по запросу! |
|
| Доп. услуги: | - возможна продажа в кредит |
| Контактная информация | |
| Лот №: | 983068 |
| Контактное лицо: | Елена |
| Телефон: | 8 (495) 822-78-71 доб.257 |


