Описание объекта лот №: 981873
| Возможное использование: | Свободное назначение Аптеки Банки Бытовые услуги Магазины Медцентры Офисы Салоны красоты Шоурумы Новостройки |
| Операция: | Продажа |
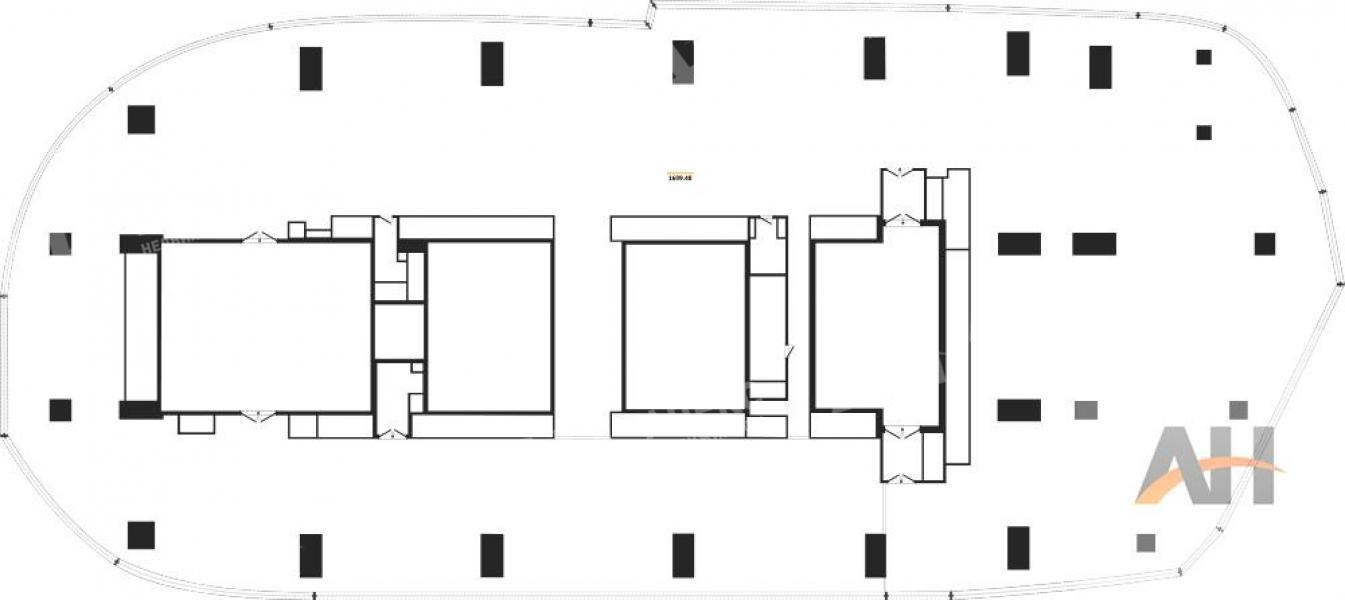
| Площадь: | 1699.5 кв. м |
| Этаж: | 11 |
| Местоположение | |
| Округ: | ЗАО |
| Метро: | Деловой центр, Кутузовская, Студенческая |
| Улица: | 1-й Красногвардейский проезд |
| ИФНС | № 7703 |
| Стоимость и условия | |
| Цена: |
1 546 526 800 руб. Сообщить о снижении цены
|
| Характеристики | |
| Тип здания: | Жилые дома |
| Этажность здания: | 90 |
| Наличие лифта: | ✓ |
| Наличие паркинга: | ✓ |
| Электрическая мощность, кВт: | 339 |
| Срок сдачи: | 2027 г. (3 кв.) |
| Описание | |
|
Лот №981873 Продается коммерческое помещение общей площадью 1699,48 кв. м., расположенное на 11 этаже в строящемся комплексе ONE TOWER (1 очередь, корпус 1). Общее количество этажей в здании — 90. Адрес объекта: 1 Красногвардейский проезд, дом 13. Помещение имеет статус свободного назначения, что позволяет разместить практически любой вид бизнеса: медицинский центр, салон красоты, парикмахерскую, офис, ресторан, бар, банк, предприятие бытовых услуг, торговую точку или магазин. Сдача объекта в эксплуатацию запланирована на третий квартал 2027 года. Высота потолков в помещении составляет 3,90 метра.
Чтобы получить ПОДРОБНУЮ ПРЕЗЕНТАЦИЮ С ПЛАНИРОВКОЙ И ФОТОГРАФИЯМИ на этот объект, звоните. Высылаем в течение 15 минут по запросу! |
|
| Доп. услуги: | - возможна продажа в кредит |
| Контактная информация | |
| Лот №: | 981873 |
| Контактное лицо: | НОВОСТРОЙКИ |
| Телефон: | 8 (495) 822-78-71 доб.211 |


