Описание объекта лот №: 977000
| Возможное использование: | Свободное назначение Бизнес |
| Операция: | Продажа бизнеса |
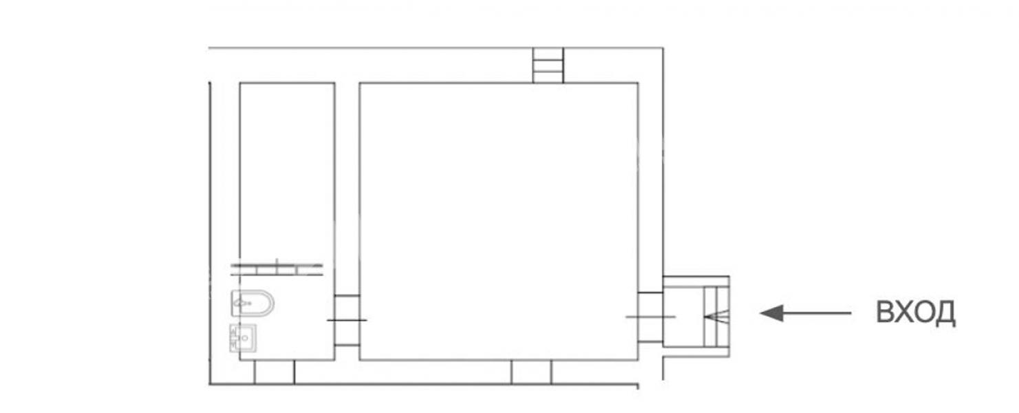
| Площадь: | 42.8 кв. м |
| Этаж: | цоколь |
| Местоположение | |
| Округ: | ЦАО |
| Метро: | Бауманская, Курская, Красные ворота |
| От метро: | 10 мин. пешком |
| Улица: | Денисовский пер |
| ИФНС | № 7701 |
| Стоимость и условия | |
| Цена: |
12 000 000 руб. Сообщить о снижении цены
|
| Срок окупаемости: | 8 лет |
| Обеспечительный платеж: | Без залога |
| Характеристики | |
| Тип здания: | Жилые дома |
| Этажность здания: | 5 |
| Электрическая мощность, кВт: | 15 |
| Описание | |
|
Лот №977000 Продается готовый арендный бизнес. Объект расположен в районе с плотной жилой застройкой и устойчивым пешеходным трафиком. В 10-минутной зоне проживает около 15 916 человек. В непосредственной близости находятся школа №3, два детских сада, остановки общественного транспорта (3 минуты пешком). До метро «Бауманская» — около 10 минут. Помещение Площадь: 42,8 м² Этаж: цокольный, отдельный вход Высота потолков: 2,6 м Электрическая мощность: 15 кВт Формат подходит для розничных проектов, сервисных услуг, офиса обслуживания, студийного формата, пунктов выдачи. Коммерческий потенциал Трафик формируется жилыми домами, образовательными учреждениями и транспортной доступностью. Объект расположен в зоне регулярного посещения местными жителями, что повышает устойчивость потока и снижает маркетинговые затраты для будущего бизнеса.
Чтобы получить ПОДРОБНУЮ ПРЕЗЕНТАЦИЮ С ПЛАНИРОВКОЙ И ФОТОГРАФИЯМИ на этот объект, звоните. Высылаем в течение 15 минут по запросу! |
|
| Доп. услуги: | - возможна продажа в кредит |
| Контактная информация | |
| Лот №: | 977000 |
| Контактное лицо: | Апекс |
| Телефон: | 8 (495) 822-78-71 доб.333 |


