Описание объекта лот №: 976477
| Возможное использование: | Свободное назначение Магазины Медцентры Офисы Салоны красоты Шоурумы |
| Операция: | Продажа |
| Площадь: | 469 кв. м |
| Этаж: | 1 |
| Местоположение | |
| Округ: | ЗАО |
| Метро: | Минская, Ломоносовский проспект, Парк победы |
| От метро: | 8 мин. пешком |
| Улица: | Улофа Пальме ул |
| ИФНС | № 7729 |
| Стоимость и условия | |
| Цена: |
199 999 000 руб. Сообщить о снижении цены
|
| Форма налогообложения собственника: | НДС |
| Срок окупаемости: | 10 лет |
| Обеспечительный платеж: | 1 месяц |
| Эксплуатационные расходы включены: | ✓ |
| Характеристики | |
| Тип здания: | Жилые дома |
| Отдельный вход: | ✓ |
| Этажность здания: | 26 |
| Тип окон: | витринные |
| Электрическая мощность, кВт: | 40 |
| Описание | |
|
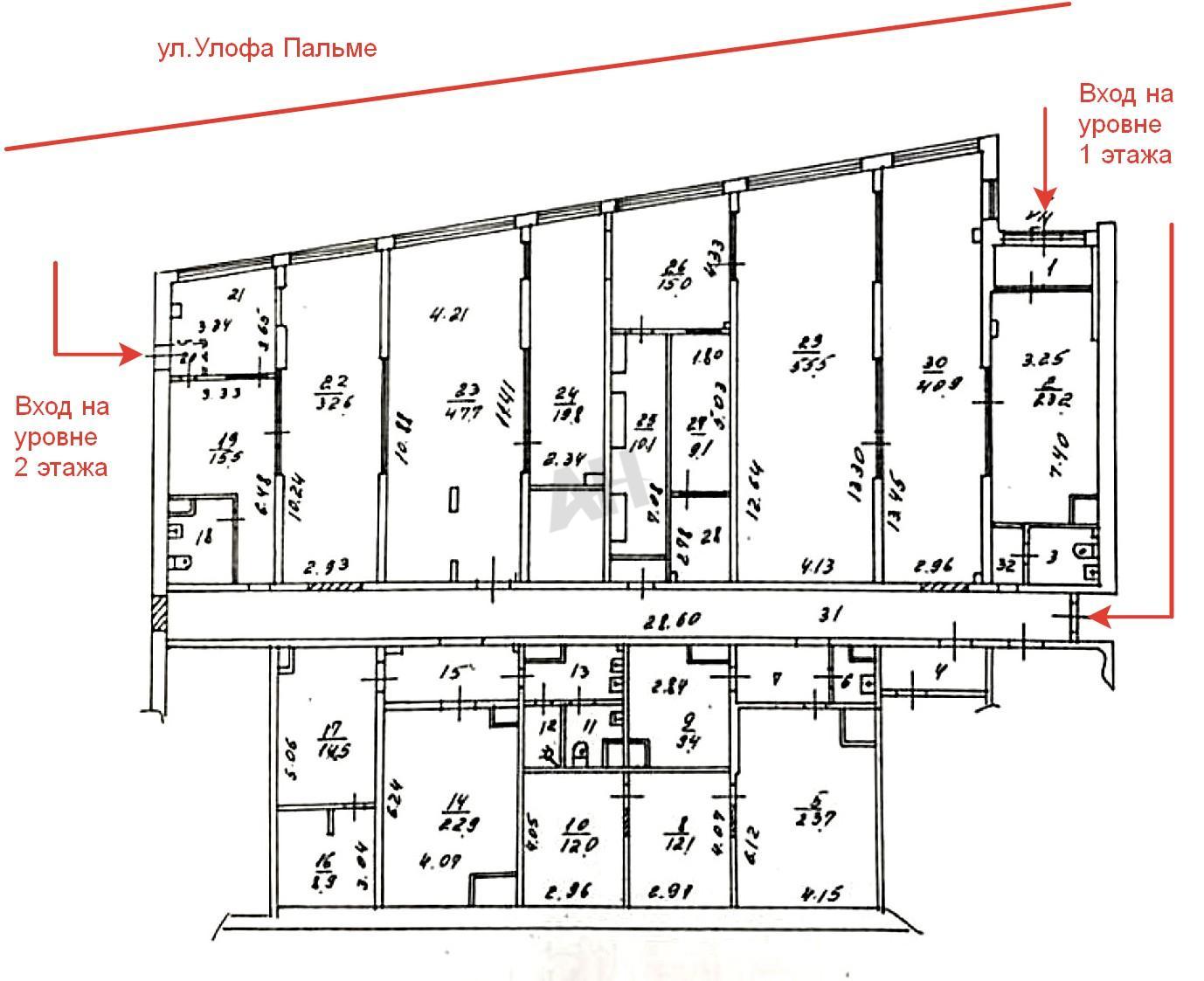
Лот №976477 Продается помещение 469 м2 на 1 линии ул.Улофа Пальме. Престижный район в ЗАО, достойное окружение. Помещение находится на 1 этаже ЖК «Депутатский Дом» (Управление Делами Президента РФ). Функциональная кабинетная планировка, 3 отдельных входа, ВИП-зона руководства, переговорные, кухонная зона. Офисная отделка, кондиционирование, сплит-системы, 3 санузла. Отличные рекламные возможности, витринные окна (открываются), 20 парковочных мест. Подходит под: офис, магазин, шоурум, учебный центр, образовательный центр, салон красоты.
Чтобы получить ПОДРОБНУЮ ПРЕЗЕНТАЦИЮ С ПЛАНИРОВКОЙ И ФОТОГРАФИЯМИ на этот объект, звоните. Высылаем в течение 15 минут по запросу! |
|
| Доп. услуги: | - возможна продажа в кредит |
| Контактная информация | |
| Лот №: | 976477 |
| Контактное лицо: | Андрей Валерьевич |
| Телефон: | 8 (495) 822-78-71 доб.253 |


